Klanttevredenheid  9,3 Funda
0 0 0 0 0 0| 0

Doctor Beckersstraat 134

BEEK

Op een geliefde woonlocatie in Beek mogen wij u deze ruime en goed ingedeelde halfvrijstaande woning aanbieden. De woning beschikt over een woonoppervlakte van ca. 153m² en is gelegen op een perceel van 218 m². Met onder andere vier slaapkamers, een royale woonkamer met aanbouw,...

Naar omschrijvingen

Prijs

€359.000,- k.k.

Status

NIEUW

Type

2-onder-1-kap

Woonoppervlakte

153 m²

Inhoud

590 m3

Bouwjaar

1968

  Download brochure
Meer weten? Uw makelaar voor dit pand is ...
Marco Hanssen
Neem contact op

Dit object is 92 keer bekeken.

Vraag bezichtiging aan

Omschrijving

Op een geliefde woonlocatie in Beek mogen wij u deze ruime en goed ingedeelde halfvrijstaande woning aanbieden. De woning beschikt over een woonoppervlakte van ca. 153m² en is gelegen op een perceel van 218 m². Met onder andere vier slaapkamers, een royale woonkamer met aanbouw, hobby-/werkruimte, garage en een onderhoudsvriendelijke tuin, is dit een ideale gezinswoning.

Omgeving
Gelegen aan een rustige en brede straat in een woonwijk, op korte afstand van het centrum van Beek met alle dagelijkse voorzieningen binnen handbereik.
Uitvalswegen (A2 en A76) en openbaar vervoer zijn snel bereikbaar, waardoor de ligging zowel rustig als centraal te noemen is.

Leuk om te weten
• Bouwjaar: 1968 (conform BAG);
• Woonoppervlakte ca. 153 m² (NEN 2580 meetrapport aanwezig);
• Perceel 218 m² (conform kadaster);
• Vier slaapkamers;
• Royale woonkamer met aanbouw;
• Multifunctionele extra ruimte (hobby-/werkkamer);
• Garage en oprit;
• Energielabel C;
• Voorzien van dak- en spouwmuurisolatie;
• Geheel voorzien van isolerende beglazing;
• Gelegen nabij centrum Beek.

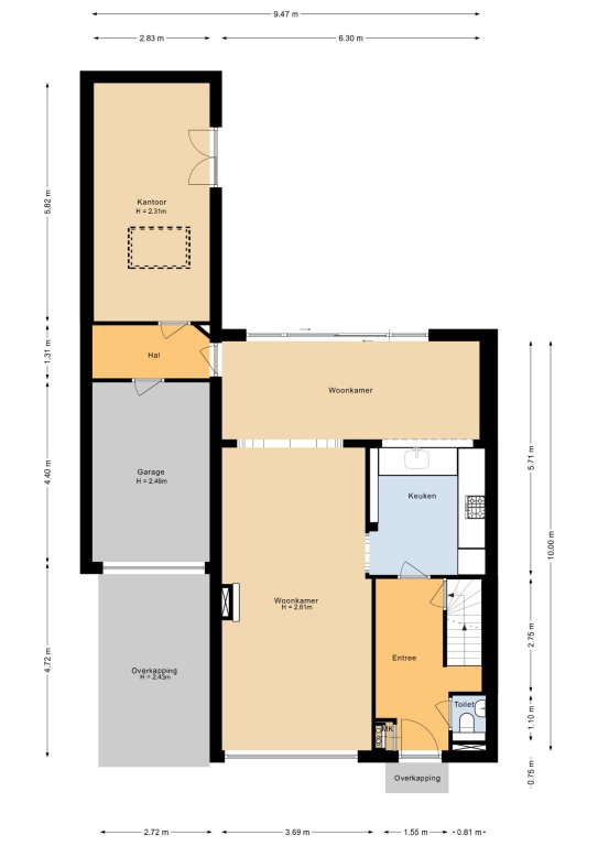
Indeling
Souterrain
Provisiekelder.

Begane grond
Entree/hal met meterkast, toiletruimte en trapopgang.
De ruime en lichte woonkamer met sfeervolle open haard staat in open verbinding met de tuinkamer/eetkamer (totaal ca. 44 m²), welke middels een schuifpui toegang biedt tot de tuin.
De semi-open keuken (ca. 9 m²) is functioneel ingericht en voorzien van de navolgende apparatuur: 4-pits inductie kookplaat, afzuigkap, koelkast, vaatwasser en close-in boiler.
Aan de achterzijde bevindt zich een extra multifunctionele ruimte van ca. 17 m², ideaal als hobbyruimte, werkplek of speelkamer.
Via de gang is de garage/berging met dubbel openslaande deuren bereikbaar, welke tevens is voorzien van witgoedaansluitingen.

Eerste verdieping
De overloop biedt toegang tot drie slaapkamers en de badkamer.
- Slaapkamer 1: ca. 8 m².
- Slaapkamer 2: ca. 12 m².
- Slaapkamer 3: ca. 15 m².
De overloop en slaapkamers zijn voorzien van een laminaatvloer.
De badkamer beschikt over een douche, toilet en wastafel met meubel.

Tweede verdieping
Via vaste trap bereikbare zolderverdieping met overloop met wastafel en vierde slaapkamer (ca. 14 m²). Tevens bevindt zich hier de opstelplaats van de C.V.-installatie(huur, 2016) en extra bergruimte.

Buitenruimte
De woning beschikt over een onderhoudsvriendelijke voor- en achtertuin.
De knusse achtertuin is gelegen op het noordwesten en biedt voldoende privacy en mogelijkheden om een gezellige buitenruimte te creëren.

Interesse? Wij nemen graag de tijd voor u! Neem contact op via het contactformulier op Funda of op onze website en we laten u de woning graag zien. Komt een fysieke afspraak niet zo goed uit, bel dan voor de digitale mogelijkheden!

Overige informatie
De gebruikelijke waarborgsom/bankgarantie is 10% van de koopsom. De koper dient deze, indien de verkoper en koper dit overeenkomen, binnen 2 weken nadat het financieringsvoorbehoud is verlopen bij de desbetreffende notaris te deponeren.

Schriftelijkheidsvereiste
Conform artikel 7:2 Burgerlijk Wetboek, is er pas sprake van een rechtsgeldige koopovereenkomst als de particuliere verkoper en de particuliere koper de koopovereenkomst hebben ondertekend. Een mondelinge overeenstemming tussen de particuliere verkoper en de particuliere koper is niet rechts- geldig.

Disclaimer
Alle door ons kantoor verstrekte informatie omtrent onroerende zaken, moet beschouwd worden als een uitnodiging om in onderhandeling te treden, en is geheel vrijblijvend! Alle vermelde maten en afmetingen zijn slechts bij benadering. Aan deze beperkte informatie kunnen geen rechten worden ontleend. Indien in enige documentatie of op enige website informatie staat die niet overeen komt met de werkelijkheid, dan geldt de feitelijke situatie waarin de woning zich bevindt, zoals koper deze tijdens de bezichtiging heeft kunnen waarnemen, en wordt de woning in deze feitelijke situatie/staat verkocht. Een (eventueel) bijgevoegde plattegrond dient uitsluitend als globale indicatie/visualisatie. Hieraan kunnen uitdrukkelijk geen rechten worden ontleend.

Uw makelaar Marco Hanssen nodigt u graag uit voor een bezichtiging.

Lees volledig +
Contact
Kantoor

Mauritslaan 4a
6161 HV Geleen

  085 - 020 7777
  info@lassoo.nl

Specificates
Afmetingen
  • Woonopp. 153 m²
  • Perceelopp. 218 m²
  • Inhoud 590 m³
Algemeen
  • Beschikbaarheid In overleg
Bouw
  • Soort Woningen
  • Type 2-onder-1-kap
  • Bouwjaar 1968
Energie
  • Energielabel C
  • CV-ketel Combi
  • CV-ketel eigendom Nee
  • CV-ketel brandstof Gas
  • CV-ketel bouwjaar 2016
  • CV-ketel warmwater Ja
  • Aanwezige isolatie Dakisolatie, muurisolatie, glasisolatie
Indeling
  • Slaapkamers 4
  • Aparte douche Nee
  • Garage Ja
  • Kelder Ja
  • Tuin Ja
  • Tuin ligging Noordwest
  • Balkon Nee
  • Dakterras Nee
Kadastrale gegevens
  • Sectie G
  • Sectie perceel 1054
Voorziening
  • Parkeerplaats Ja
  • Lift Nee
  • Airco Nee
  • Openhaard Nee
  • Zwembad Nee
Lees volledig +
Klik hier om de kaart te bekijken

Plattegrond

Vraag bezichtiging aan

Veld niet correct
Veld niet correct
Veld niet correct
Veld niet correct

Brochure aanvragen

Veld niet correct
Veld niet correct
Veld niet correct
Veld niet correct
Veld niet correct
Veld niet correct
Veld niet correct
Klanttevredenheid  9,3 Funda
SEH
Vastgoed ned
Qualis
Toestemming
Instellingen
Links

Wij plaatsen functionele en persoonlijke cookies op onze website. Functionele cookies plaatsen wij altijd, omdat deze noodzakelijk zijn om de website goed te laten werken en het gebruik te kunnen meten. Persoonlijke cookies worden gebruikt voor gepersonaliseerde en niet-gepersonaliseerde advertenties. Lees hier meer over in onze privacyverklaring en ons cookiebeleid.

Door op 'Accepteren' te klikken, ga je akkoord met het plaatsen van zowel functionele als persoonlijke cookies. Bij instellingen kun je een andere voorkeur aangeven. Je kunt je voorkeuren altijd later nog aanpassen op onze cookiepagina.

Wanneer je onze website bezoekt, kunnen we informatie over je bezoek verzamelen door het plaatsen van cookies. Je kunt hier aangeven welk type cookie we mogen plaatsen.

We gebruiken cookies van derden om je interesses te onthouden. Zodat wij en derde partijen je o.a. advertenties laten zien die zijn gebaseerd op jouw voorkeuren.

Lees hier meer over in onze privacyverklaring en ons cookiebeleid.