Klanttevredenheid  9,3 Funda
0 0 0 0 0 0| 0

Koestraat 12

HOENSBROEK

In een rustige woonwijk van Hoensbroek ligt deze gemoderniseerde vrijstaande bungalow, volledig gelijkvloers en daarmee uitermate geschikt voor levensloopbestendig wonen. De woning beschikt over een royale woonoppervlakte van circa 151 m², drie slaapkamers, twee badkamers en diverse praktische...

Naar omschrijvingen

Prijs

€379.000,- k.k.

Status

Verkocht ovb

Type

Vrijstaand

Woonoppervlakte

151 m²

Inhoud

558 m3

Bouwjaar

1960

  Download brochure
Meer weten? Uw makelaar voor dit pand is ...
Marco Hanssen
Neem contact op
Verkocht ovb

Dit object is 3.740 keer bekeken.

Vraag bezichtiging aan

Omschrijving

In een rustige woonwijk van Hoensbroek ligt deze gemoderniseerde vrijstaande bungalow, volledig gelijkvloers en daarmee uitermate geschikt voor levensloopbestendig wonen. De woning beschikt over een royale woonoppervlakte van circa 151 m², drie slaapkamers, twee badkamers en diverse praktische nevenruimten. Het geheel is gelegen op een perceel van 397 m² en beschikt over parkeergelegenheid op eigen terrein, een vrijstaande stenen garage met berging.

Omgeving
De Koestraat is een rustige straat in een prettige woonomgeving van Hoensbroek. Dagelijkse voorzieningen zoals winkels, scholen, medische zorg en openbaar vervoer bevinden zich op korte afstand. Daarnaast zijn uitvalswegen richting Heerlen, Sittard en de A76 snel bereikbaar.

Leuk om te weten
• Volledig gelijkvloers
• Bouwjaar: 1960
• Woonoppervlakte: ca. 151 m²
• Inhoud: ca. 558 m³
• Perceeloppervlakte: 397 m²
• Drie slaapkamers en twee badkamers
• Voorzien van 20 zonnepanelen
• 3x Airconditioning
• Voorzien van nieuwe kunststof kozijnen met Hr++ beglazing
• Dakisolatie
• Geschikt voor ouderen en minder validen
• Aanvaarding: in overleg

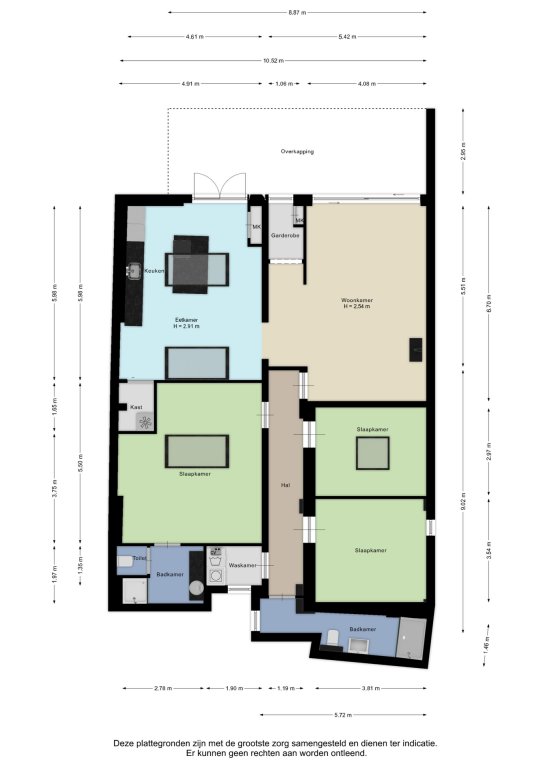
Indeling
Via openslaande deuren betreedt u de geheel vernieuwde leefkeuken: een heerlijke, lichte ruimte met een modern kookeiland, uitgerust met de navolgende A-kwaliteit inbouwapparatuur: koelkast, vriezer, vaatwasser, close-in boiler, koffiemachine, oven met airfryer functie en 4-pits inductiekookplaat met geïntegreerde afzuiging. Tevens is de keuken voorzien van een airco en biedt het toegang tot de bijkeuken, de woonkamer en de garderobe met meterkast. De woonkamer heeft een prettige lichtinval door een riante schuifpui en een light tube. Daarnaast is de woonkamer voorzien van een sfeervolle houtkachel en een airco. Vanuit de woonkamer is de hal toegankelijk welke toegang geeft tot de drie slaapkamers, beide badkamers en de wasruimte/stookruimte.
- Slaapkamer 1 ca. 27m² met airco en ensuite badkamer voorzien van douche, wastafel met meubel en toilet;
- Slaapkamer 2 ca. 12m² met lichtkoepel;
- Slaapkamer 3 ca. 14m².
De tweede badkamer is voorzien met een douche, een toilet en een wastafel met meubel.
De wasruimte is voorzien van alle witgoedaansluitingen, standplaats cv-installatie (eig. 2024) en biedt toegang tot de vliering middels vlizotrap.
De gehele woning is voorzien van een nieuwe pvc-vloer.

Buitenruimte
Aan de voorzijde van de woning bevindt zich een ruime en geheel omsloten voortuin van circa 220 m², gelegen op het zuidwesten. De tuin is onderhoudsvriendelijk aangelegd met een overkapping aan de woning. Daarnaast is er een vrijstaande stenen garage (ca. 35m²) met elektrische sectionaalpoort aanwezig.

De waarborgsom/bankgarantie is 10% van de koopsom. De koper dient deze, indien de verkoper en koper dit overeenkomen, binnen 2 weken nadat het financieringsvoorbehoud is verlopen bij de desbetreffende notaris te deponeren.
Ter bescherming van de belangen van zowel koper als ook verkoper wordt uitdrukkelijk gesteld dat een koopovereenkomst met betrekking tot deze onroerende zaak eerst dan tot stand komt nadat koper en verkoper de koopovereenkomst hebben getekend (schriftelijkheidsvereiste).
Indien c.v.ketel en/of warmwatervoorziening een huurtoestel is, dient koper de huurovereenkomst over te nemen.

Alle door ons kantoor verstrekte informatie omtrent onroerende zaken, moet beschouwd worden als een uitnodiging om in onderhandeling te treden, en is geheel vrijblijvend! Alle vermelde maten en afmetingen zijn slechts bij benadering. Aan deze beperkte info kunnen geen rechten worden ontleend. Indien in enige documentatie of op enige website informatie staat die niet overeen komt met de werkelijkheid, dan geldt de feitelijke situatie waarin de woning zich bevindt, zoals koper deze tijdens de bezichtiging heeft kunnen waarnemen, en wordt de woning in deze feitelijke situatie/staat verkocht. Een (eventueel) bijgevoegde plattegrond dient uitsluitend als globale indicatie/visualisatie. Hieraan kunnen uitdrukkelijk geen rechten worden ontleend.

De makelaar Marco Hanssen nodigt u uit voor een bezichtiging.

Lees volledig +
Contact
Kantoor

Mauritslaan 4a
6161 HV Geleen

  085 - 020 7777
  info@lassoo.nl

Specificates
Afmetingen
  • Woonopp. 151 m²
  • Perceelopp. 397 m²
  • Inhoud 558 m³
Algemeen
  • Beschikbaarheid In overleg
Bouw
  • Soort Woningen
  • Type Vrijstaand
  • Bouwjaar 1960
Energie
  • Energielabel C
  • CV-ketel Combi
  • CV-ketel eigendom Ja
  • CV-ketel brandstof Gas
  • CV-ketel bouwjaar 2024
  • CV-ketel warmwater Ja
  • Aanwezige isolatie Dakisolatie, glasisolatie
Indeling
  • Slaapkamers 3
  • Aparte douche Nee
  • Garage Ja
  • Kelder Nee
  • Tuin Ja
  • Tuin ligging Zuidwest
  • Balkon Nee
  • Dakterras Nee
Kadastrale gegevens
  • Sectie D
  • Sectie perceel 3905
Voorziening
  • Parkeerplaats Ja
  • Lift Nee
  • Airco Ja
  • Openhaard Nee
  • Zwembad Nee
  • Zonnepanelen Ja
Lees volledig +
Klik hier om de kaart te bekijken

Plattegrond

Documenten

Vraag bezichtiging aan

Veld niet correct
Veld niet correct
Veld niet correct
Veld niet correct

Brochure aanvragen

Veld niet correct
Veld niet correct
Veld niet correct
Veld niet correct
Veld niet correct
Veld niet correct
Veld niet correct
Klanttevredenheid  9,3 Funda
SEH
Vastgoed ned
Qualis
Toestemming
Instellingen
Links

Wij plaatsen functionele en persoonlijke cookies op onze website. Functionele cookies plaatsen wij altijd, omdat deze noodzakelijk zijn om de website goed te laten werken en het gebruik te kunnen meten. Persoonlijke cookies worden gebruikt voor gepersonaliseerde en niet-gepersonaliseerde advertenties. Lees hier meer over in onze privacyverklaring en ons cookiebeleid.

Door op 'Accepteren' te klikken, ga je akkoord met het plaatsen van zowel functionele als persoonlijke cookies. Bij instellingen kun je een andere voorkeur aangeven. Je kunt je voorkeuren altijd later nog aanpassen op onze cookiepagina.

Wanneer je onze website bezoekt, kunnen we informatie over je bezoek verzamelen door het plaatsen van cookies. Je kunt hier aangeven welk type cookie we mogen plaatsen.

We gebruiken cookies van derden om je interesses te onthouden. Zodat wij en derde partijen je o.a. advertenties laten zien die zijn gebaseerd op jouw voorkeuren.

Lees hier meer over in onze privacyverklaring en ons cookiebeleid.