Klanttevredenheid  9,3 Funda
0 0 0 0 0 0| 0

Rijksweg Zuid 113 A

GELEEN

Welkom bij Rijksweg Zuid 113A! Deze karakteristieke, sfeervolle halfvrijstaande woning is gebouwd in 1950 en gelegen op loopafstand van het centrum van Geleen en nabij scholen en de autoweg.
De woning bezit fraaie authentieke elementen en beschikt over vier slaapkamers, ruime tuin,...

Naar omschrijvingen

Prijs

€345.000,- k.k.

Status

NIEUW

Type

Half-vrijstaand

Woonoppervlakte

127 m²

Inhoud

502 m3

Bouwjaar

1950

  Download brochure
Meer weten? Uw makelaar voor dit pand is ...
Marco Hanssen
Neem contact op

Dit object is 27 keer bekeken.

Vraag bezichtiging aan

Omschrijving

Welkom bij Rijksweg Zuid 113A! Deze karakteristieke, sfeervolle halfvrijstaande woning is gebouwd in 1950 en gelegen op loopafstand van het centrum van Geleen en nabij scholen en de autoweg.
De woning bezit fraaie authentieke elementen en beschikt over vier slaapkamers, ruime tuin, sauna, moderne badkamer en keuken.

Omgeving
Deze woning bevindt zich op een centrale locatie met zowel stedelijke voorzieningen als natuurgebieden in de directe omgeving. Het levendige centrum is snel bereikbaar, evenals uitvalswegen die naar verschillende richtingen leiden. Voor natuurliefhebbers ligt het Danikerbos op slechts enkele minuten rijden.

Leuk om te weten
• Bouwjaar: 1950 (conform BAG);
• Woonoppervlakte ca. 127 m² (NEN 2580 meetrapport aanwezig);
• Perceel 249 m² (conform kadaster);
• Vier slaapkamers;
• Modern afgewerkt;
• Houten kozijnen met isolerende beglazing;
• Energielabel D;
• Ruime tuin met overkapping;
• Deels voorzien van rolluiken;
• HR combi ketel (Remeha, bouwjaar 2017, eigendom);
• 13 zonnepanelen (eigendom);
• Gelegen nabij centrum Geleen.

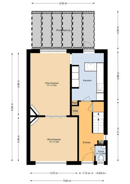
Indeling
Souterrain:
provisiekelder met tegelvloer en aansluiting voor de wasapparatuur.

Begane grond
Bij binnenkomst betreedt u een hal/entree met toegang tot de moderne meterkast en een toiletruimte met hangcloset. De begane grond beschikt over een woonkamer met parketvloer die verbonden is middels ensuite deuren met een gezellige eetkamer voorzien van een tegelvloer en een vouwwand naar de achtertuin voor optimaal tuincontact. De aangrenzende keuken is modern ingericht met diverse inbouwapparatuur, waaronder een inductie-kookplaat (5 pits), afzuigkap, vaatwasser, koelkast met vriesvak, stoomoven en combi-oven. De keuken is eveneens voorzien van een tegelvloer.

Eerste Verdieping
Op de eerste verdieping bevindt zich de overloop met toegang tot de drie slaapkamers, saunaruimte en een luxe badkamer.
- Slaapkamer 1 (ca. 14 m²), gelegen aan de achterzijde.
- Slaapkamer 2 (ca. 13 m²), gelegen aan de voorzijde.
- Slaapkamer 3 (ca. 5 m²), gelegen aan de voorzijde.
- De moderne badkamer is uitgerust met een inloopdouche, dubbele wastafel met meubel en tweede toilet.
Alle slaapkamers voorzien van een nette laminaatvloer.

Tweede verdieping
Bereikbaar via vaste trap met overloop welke toegang biedt tot de berging met standplaats cv-installatie (eig. 2017) en ruime vierde slaapkamer (ca. 19 m²) met laminaatvloer en dakraam.

Tuin
Fraai aangelegde, diepe, zonnige tuin op het Zuidoosten beschikt over een mooie terrasoverkapping met inbouwpspots en screens, meerdere terrassen, gazon en borders. De tuin is achterom bereikbaar via het zij-pad.

Interesse? Wij nemen graag de tijd voor u! Neem contact op via het contactformulier op Funda of op onze website en we laten u de woning graag zien.

Overige informatie
De gebruikelijke waarborgsom/bankgarantie is 10% van de koopsom. De koper dient deze, indien de verkoper en koper dit overeenkomen, binnen 2 weken nadat het financieringsvoorbehoud is verlopen bij de desbetreffende notaris te deponeren.

Schriftelijkheidsvereiste
Conform artikel 7:2 Burgerlijk Wetboek, is er pas sprake van een rechtsgeldige koopovereenkomst als de particuliere verkoper en de particuliere koper de koopovereenkomst hebben ondertekend. Een mondelinge overeenstemming tussen de particuliere verkoper en de particuliere koper is niet rechts- geldig.

Disclaimer
Alle door ons kantoor verstrekte informatie omtrent onroerende zaken, moet beschouwd worden als een uitnodiging om in onderhandeling te treden, en is geheel vrijblijvend! Alle vermelde maten en afmetingen zijn slechts bij benadering. Aan deze beperkte informatie kunnen geen rechten worden ontleend. Indien in enige documentatie of op enige website informatie staat die niet overeen komt met de werkelijkheid, dan geldt de feitelijke situatie waarin de woning zich bevindt, zoals koper deze tijdens de bezichtiging heeft kunnen waarnemen, en wordt de woning in deze feitelijke situatie/staat verkocht. Een (eventueel) bijgevoegde plattegrond dient uitsluitend als globale indicatie/visualisatie. Hieraan kunnen uitdrukkelijk geen rechten worden ontleend.

Uw makelaar Marco Hanssen nodigt u graag uit voor een bezichtiging.

Lees volledig +
Contact
Kantoor

Mauritslaan 4a
6161 HV Geleen

  085 - 020 7777
  info@lassoo.nl

Specificates
Afmetingen
  • Woonopp. 127 m²
  • Perceelopp. 249 m²
  • Inhoud 502 m³
Algemeen
  • Beschikbaarheid In overleg
Bouw
  • Soort Woningen
  • Type Half-vrijstaand
  • Bouwjaar 1950
Energie
  • Energielabel D
  • CV-ketel Combi
  • CV-ketel eigendom Ja
  • CV-ketel brandstof Gas
  • CV-ketel bouwjaar 2017
  • CV-ketel warmwater Ja
Indeling
  • Slaapkamers 4
  • Aparte douche Nee
  • Garage Nee
  • Kelder Nee
  • Tuin Ja
  • Tuin ligging Zuidoost
  • Balkon Nee
  • Dakterras Nee
Kadastrale gegevens
  • Sectie F
  • Sectie perceel 2491
Voorziening
  • Parkeerplaats Nee
  • Lift Nee
  • Airco Nee
  • Openhaard Nee
  • Zwembad Nee
Lees volledig +
Klik hier om de kaart te bekijken

Plattegrond

Vraag bezichtiging aan

Veld niet correct
Veld niet correct
Veld niet correct
Veld niet correct

Brochure aanvragen

Veld niet correct
Veld niet correct
Veld niet correct
Veld niet correct
Veld niet correct
Veld niet correct
Veld niet correct
Klanttevredenheid  9,3 Funda
SEH
Vastgoed ned
Qualis
Toestemming
Instellingen
Links

Wij plaatsen functionele en persoonlijke cookies op onze website. Functionele cookies plaatsen wij altijd, omdat deze noodzakelijk zijn om de website goed te laten werken en het gebruik te kunnen meten. Persoonlijke cookies worden gebruikt voor gepersonaliseerde en niet-gepersonaliseerde advertenties. Lees hier meer over in onze privacyverklaring en ons cookiebeleid.

Door op 'Accepteren' te klikken, ga je akkoord met het plaatsen van zowel functionele als persoonlijke cookies. Bij instellingen kun je een andere voorkeur aangeven. Je kunt je voorkeuren altijd later nog aanpassen op onze cookiepagina.

Wanneer je onze website bezoekt, kunnen we informatie over je bezoek verzamelen door het plaatsen van cookies. Je kunt hier aangeven welk type cookie we mogen plaatsen.

We gebruiken cookies van derden om je interesses te onthouden. Zodat wij en derde partijen je o.a. advertenties laten zien die zijn gebaseerd op jouw voorkeuren.

Lees hier meer over in onze privacyverklaring en ons cookiebeleid.