Klanttevredenheid  9,3 Funda
0 0 0 0 0 0| 0

Jupiterstraat 88

GELEEN

Welkom bij deze charmante halfvrijstaande woning, gelegen aan de Jupiterstraat 88, op een ideale locatie in Geleen. Hier woon je op korte loopafstand van het gezellige centrum, met alle dagelijkse voorzieningen binnen handbereik. Winkels, scholen, sport- en recreatiecentrum Glanerbrook én...

Naar omschrijvingen

Prijs

€259.000,- k.k.

Type

Half-vrijstaand

Woonoppervlakte

75 m²

Inhoud

338 m3

Bouwjaar

1953

  Download brochure
Meer weten? Uw makelaar voor dit pand is ...
Ray van der Venne
Neem contact op

Dit object is 449 keer bekeken.

Vraag bezichtiging aan

Omschrijving

Welkom bij deze charmante halfvrijstaande woning, gelegen aan de Jupiterstraat 88, op een ideale locatie in Geleen. Hier woon je op korte loopafstand van het gezellige centrum, met alle dagelijkse voorzieningen binnen handbereik. Winkels, scholen, sport- en recreatiecentrum Glanerbrook én uitstekende uitvalswegen richting Heerlen en Maastricht maken dit een bijzonder praktische en gewilde plek om te wonen.

Deze woning biedt een fijne combinatie van comfort, licht en leefruimte – perfect voor starters, jonge gezinnen of iedereen die op zoek is naar een goed onderhouden thuis op een rustige maar centrale locatie.

Leuk om te weten:
- Bouwjaar 1953 (conform BAG), eigen perceel: 185m² (conform kadaster);
- Woonoppervlakte ca. 75 m², overige inpandige ruimte ca. 12 m² (meetrapport aanwezig);
- Inhoud: ca. 338 m³;
- Energielabel in aanvraag;
- Nefit Proline CV-installatie (bj. 2017, eigendom);
- Geheel voorzien van rolluiken;
- Airconditioning aanwezig in de woonkamer;
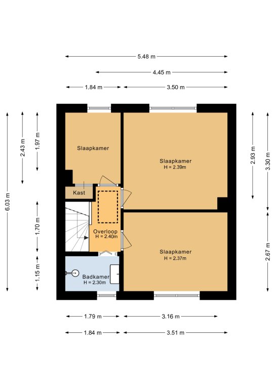
- Drie slaapkamers op de eerste verdieping;
- Onderhoudsvriendelijke achtertuin;
- Garage aanwezig - ideaal voor auto, fietsen of extra bergruimte;
- Alle afmetingen zijn terug te vinden op de plattegronden.

INDELING
Kelder:
Praktische provisiekelder met volop opslagmogelijkheden en aansluiting voor de wasmachine.

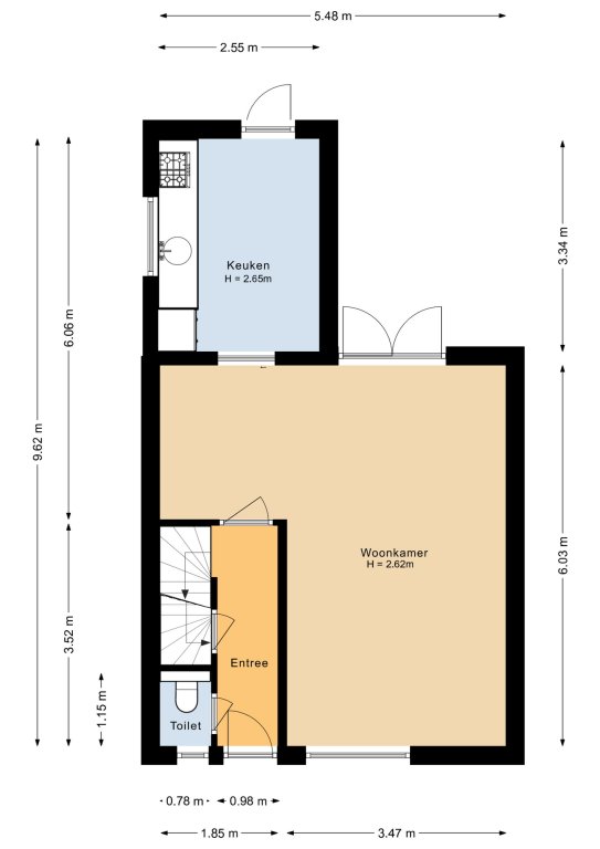
Begane grond:
Via de voordeur betreedt u de hal met toegang tot de meterkast en het modern betegelde toilet met zwevend closet.
Vanuit de hal heeft u tevens toegang tot de ruime kelder.

De lichte woonkamer biedt dankzij de openslaande deuren een mooie verbinding met de tuin en heeft een prettige leefruimte.
De gesloten leefkeuken is voorzien van een tegelvloer, veel kastruimte en diverse inbouwapparatuur, waaronder een 5-pits gaskomfoor, afzuigkap, combimagnetron, vaatwasser en koelkast. Een deur geeft direct toegang tot de tuin, waardoor binnen en buiten naadloos in elkaar overgaan.

Eerste verdieping:
Overloop met toegang tot drie slaapkamers, allen voorzien van vloerbedekking. De compacte maar functionele badkamer beschikt over een douchecabine en een wastafel.

Tweede verdieping:
Via de vlizotrap bereikbare bergzolder: ideaal voor extra opslag.

Tuin:
De onderhoudsvriendelijke achtertuin is volledig betegeld en beschikt over een kleine border voor wat groen. De tuin biedt veel privacy en is voorzien van een praktische buitenberging.

Ter bescherming van de belangen van zowel koper als ook verkoper wordt uitdrukkelijk gesteld dat een koopovereenkomst met betrekking tot deze onroerende zaak eerst dan tot stand komt nadat koper en verkoper de koopovereenkomst hebben getekend (schriftelijkheidsvereiste).
Indien c.v. ketel en/of warmwatervoorziening een huurtoestel is, dient koper de huurovereenkomst over te nemen.

Alle door ons kantoor verstrekte informatie omtrent onroerende zaken, moet beschouwd worden als een uitnodiging om in onderhandeling te treden, en is geheel vrijblijvend! Alle vermelde maten en afmetingen zijn slechts bij benadering. Aan deze beperkte info kunnen geen rechten worden ontleend. Indien in enige documentatie of op enige website informatie staat die niet overeen komt met de werkelijkheid, dan geldt de feitelijke situatie waarin de woning zich bevindt, zoals koper deze tijdens de bezichtiging heeft kunnen waarnemen, en wordt de woning in deze feitelijke situatie/staat verkocht. Een (eventueel) bijgevoegde plattegrond dient uitsluitend als globale indicatie/visualisatie. Hieraan kunnen uitdrukkelijk geen rechten worden ontleend.

De makelaar Ray van der Venne nodigt u uit voor een bezichtiging.

Lees volledig +
Contact
Kantoor

Mauritslaan 4a
6161 HV Geleen

  085 - 020 7777
  info@lassoo.nl

Specificates
Afmetingen
  • Woonopp. 75 m²
  • Perceelopp. 185 m²
  • Inhoud 338 m³
  • Tuin oppervlakte 56 m²
Algemeen
  • Beschikbaarheid In overleg
Bouw
  • Soort Woningen
  • Type Half-vrijstaand
  • Bouwjaar 1953
Energie
  • Energielabel F
  • CV-ketel Combi
  • CV-ketel eigendom Ja
  • CV-ketel brandstof Gas
  • CV-ketel bouwjaar 2017
  • CV-ketel warmwater Ja
Indeling
  • Slaapkamers 3
  • Aparte douche Nee
  • Garage Ja
  • Kelder Ja
  • Tuin Ja
  • Tuin ligging Zuidoost
  • Balkon Nee
  • Dakterras Nee
Kadastrale gegevens
  • Sectie D
  • Sectie perceel 4583
Voorziening
  • Parkeerplaats Ja
  • Lift Nee
  • Airco Ja
  • Openhaard Nee
  • Zwembad Nee
Lees volledig +
Klik hier om de kaart te bekijken

Plattegrond

Documenten

Vraag bezichtiging aan

Veld niet correct
Veld niet correct
Veld niet correct
Veld niet correct

Brochure aanvragen

Veld niet correct
Veld niet correct
Veld niet correct
Veld niet correct
Veld niet correct
Veld niet correct
Veld niet correct
Klanttevredenheid  9,3 Funda
SEH
Vastgoed ned
Qualis
Toestemming
Instellingen
Links

Wij plaatsen functionele en persoonlijke cookies op onze website. Functionele cookies plaatsen wij altijd, omdat deze noodzakelijk zijn om de website goed te laten werken en het gebruik te kunnen meten. Persoonlijke cookies worden gebruikt voor gepersonaliseerde en niet-gepersonaliseerde advertenties. Lees hier meer over in onze privacyverklaring en ons cookiebeleid.

Door op 'Accepteren' te klikken, ga je akkoord met het plaatsen van zowel functionele als persoonlijke cookies. Bij instellingen kun je een andere voorkeur aangeven. Je kunt je voorkeuren altijd later nog aanpassen op onze cookiepagina.

Wanneer je onze website bezoekt, kunnen we informatie over je bezoek verzamelen door het plaatsen van cookies. Je kunt hier aangeven welk type cookie we mogen plaatsen.

We gebruiken cookies van derden om je interesses te onthouden. Zodat wij en derde partijen je o.a. advertenties laten zien die zijn gebaseerd op jouw voorkeuren.

Lees hier meer over in onze privacyverklaring en ons cookiebeleid.