Klanttevredenheid  9,3 Funda
0 0 0 0 0 0| 0

Knapenstraat 35

GELEEN

Welkom bij Knapenstraat 35, Geleen. Bent u op zoek naar een goed onderhouden half vrijstaande woning op een rustige locatie? Dan is deze woning precies wat u zoekt. De woning beschikt over onder andere vier slaapkamers, een lichte woonkamer, aparte keuken, ruime zolder met mogelijkheid tot...

Naar omschrijvingen

Prijs

€289.000,- k.k.

Status

Verkocht ovb

Type

2-onder-1-kap

Woonoppervlakte

108 m²

Inhoud

459 m3

Bouwjaar

1970

  Download brochure
Meer weten? Uw makelaar voor dit pand is ...
Marco Hanssen
Neem contact op
Verkocht ovb

Dit object is 1.853 keer bekeken.

Vraag bezichtiging aan

Omschrijving

Welkom bij Knapenstraat 35, Geleen. Bent u op zoek naar een goed onderhouden half vrijstaande woning op een rustige locatie? Dan is deze woning precies wat u zoekt. De woning beschikt over onder andere vier slaapkamers, een lichte woonkamer, aparte keuken, ruime zolder met mogelijkheid tot creëren van vijfde slaapkamer en garage.

Omgeving
De woning is gelegen in een rustige straat in Oud-Geleen. Dagelijkse voorzieningen zoals scholen, supermarkten, openbaar vervoer en uitvalswegen zijn snel bereikbaar. U woont hier in een prettige en centrale woonomgeving met alle gemakken binnen handbereik.

Leuk om te weten
- Bouwjaar: 1970 (conform BAG);
- Perceel: 223m² (conform kadaster);
- Woonoppervlakte ca. 108 m² (NEN 2580 meetrapport aanwezig);
- Energielabel E;
- Voorzien van aluminium kozijnen met isolerende beglazing;
- Ruime oprit met garage;
- Vier slaapkamers (mogelijkheid tot realiseren vijfde);
- Aanvaarding: in overleg.

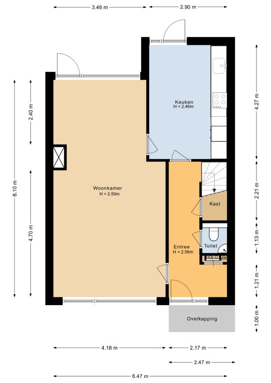
Indeling
Begane grond
Via de entreehal met toiletruimte, trapkast en trapopgang betreedt u de begane grond. De lichte woonkamer met parketvloer voelt direct prettig aan en vormt een fijne leefruimte voor het hele gezin. Aan de achterzijde is de gesloten keuken gesitueerd en beschikt over de navolgende apparatuur: 4-pits inductiekookplaat, afzuigkap, koelkast, diepvries, oven en close-in boiler. Vanuit de keuken bereikt u de achtertuin.

Eerste verdieping
De overloop biedt toegang tot vier slaapkamers en de badkamer.
- Slaapkamer 1: ca. 12 m² gelegen aan de voorzijde.
- Slaapkamer 2: ca. 6 m² gelegen aan de voorzijde.
- Slaapkamer 3: ca. 9 m² gelegen aan de achterzijde.
- Slaapkamer 4: ca. 9 m² gelegen aan de achterzijde.
De badkamer beschikt over een douche, tweede toilet en wastafel met meubel.

Tweede verdieping
Middels vlizotrap is de bergzolder met standplaats cv-installatie (eig. 2018) te bereiken. Door het plaatsen van een vast trap is deze ruimte om te bouwen naar een vijfde slaapkamer.

Tuin
De verzorgde achtertuin met veel privacy beschikt over een terras, zijingang, borders en eigen houten schutting.

Garage en parkeren
De garage is voorzien van een handmatig bedienbare poort en biedt volop ruimte voor opslag of het stallen van een voertuig. Voor de garage bevindt zich een ruime oprit en is er voldoende openbare parkeergelegenheid.

Interesse? Wij nemen graag de tijd voor u! Neem contact op via het contactformulier op Funda of op onze website en we laten u de woning graag zien.

Overige informatie
De gebruikelijke waarborgsom/bankgarantie is 10% van de koopsom. De koper dient deze, indien de verkoper en koper dit overeenkomen, binnen 2 weken nadat het financieringsvoorbehoud is verlopen bij de desbetreffende notaris te deponeren.

Schriftelijkheidsvereiste
Conform artikel 7:2 Burgerlijk Wetboek, is er pas sprake van een rechtsgeldige koopovereenkomst als de particuliere verkoper en de particuliere koper de koopovereenkomst hebben ondertekend. Een mondelinge overeenstemming tussen de particuliere verkoper en de particuliere koper is niet rechts- geldig.

Disclaimer
Alle door ons kantoor verstrekte informatie omtrent onroerende zaken, moet beschouwd worden als een uitnodiging om in onderhandeling te treden, en is geheel vrijblijvend! Alle vermelde maten en afmetingen zijn slechts bij benadering. Aan deze beperkte informatie kunnen geen rechten worden ontleend. Indien in enige documentatie of op enige website informatie staat die niet overeen komt met de werkelijkheid, dan geldt de feitelijke situatie waarin de woning zich bevindt, zoals koper deze tijdens de bezichtiging heeft kunnen waarnemen, en wordt de woning in deze feitelijke situatie/staat verkocht. Een (eventueel) bijgevoegde plattegrond dient uitsluitend als globale indicatie/visualisatie. Hieraan kunnen uitdrukkelijk geen rechten worden ontleend.

Uw makelaar Marco Hanssen nodigt u graag uit voor een bezichtiging.

Lees volledig +
Contact
Kantoor

Mauritslaan 4a
6161 HV Geleen

  085 - 020 7777
  info@lassoo.nl

Specificates
Afmetingen
  • Woonopp. 108 m²
  • Perceelopp. 223 m²
  • Inhoud 459 m³
Algemeen
  • Beschikbaarheid In overleg
Bouw
  • Soort Woningen
  • Type 2-onder-1-kap
  • Bouwjaar 1970
Energie
  • Energielabel E
  • CV-ketel Combi
  • CV-ketel eigendom Ja
  • CV-ketel brandstof Gas
  • CV-ketel bouwjaar 2018
  • CV-ketel warmwater Ja
  • Aanwezige isolatie Glasisolatie
Indeling
  • Slaapkamers 4
  • Aparte douche Nee
  • Garage Ja
  • Kelder Nee
  • Tuin Ja
  • Tuin ligging Zuidwest
  • Balkon Nee
  • Dakterras Nee
Kadastrale gegevens
  • Sectie B
  • Sectie perceel 6011
Voorziening
  • Parkeerplaats Ja
  • Lift Nee
  • Airco Nee
  • Openhaard Nee
  • Zwembad Nee
Lees volledig +
Klik hier om de kaart te bekijken

Plattegrond

Documenten

Vraag bezichtiging aan

Veld niet correct
Veld niet correct
Veld niet correct
Veld niet correct

Brochure aanvragen

Veld niet correct
Veld niet correct
Veld niet correct
Veld niet correct
Veld niet correct
Veld niet correct
Veld niet correct
Klanttevredenheid  9,3 Funda
SEH
Vastgoed ned
Qualis
Toestemming
Instellingen
Links

Wij plaatsen functionele en persoonlijke cookies op onze website. Functionele cookies plaatsen wij altijd, omdat deze noodzakelijk zijn om de website goed te laten werken en het gebruik te kunnen meten. Persoonlijke cookies worden gebruikt voor gepersonaliseerde en niet-gepersonaliseerde advertenties. Lees hier meer over in onze privacyverklaring en ons cookiebeleid.

Door op 'Accepteren' te klikken, ga je akkoord met het plaatsen van zowel functionele als persoonlijke cookies. Bij instellingen kun je een andere voorkeur aangeven. Je kunt je voorkeuren altijd later nog aanpassen op onze cookiepagina.

Wanneer je onze website bezoekt, kunnen we informatie over je bezoek verzamelen door het plaatsen van cookies. Je kunt hier aangeven welk type cookie we mogen plaatsen.

We gebruiken cookies van derden om je interesses te onthouden. Zodat wij en derde partijen je o.a. advertenties laten zien die zijn gebaseerd op jouw voorkeuren.

Lees hier meer over in onze privacyverklaring en ons cookiebeleid.