Klanttevredenheid  9,3 Funda
0 0 0 0 0 0| 0

Breulsweg 2

WIJLRE

Wij presenteren u met genoegen deze vrijstaande bungalow. De woning beschikt over drie slaapkamers, inpandige garage, 13 zonnepanelen en is goed geïsoleerd (energielabel C). De woning kenmerkt zich door het vele lichtinval, fijne ruimtes en een centrale ligging! De maten van alle ruimtes vindt...

Naar omschrijvingen

Prijs

€550.000,- k.k.

Status

Verkocht ovb

Type

Vrijstaand

Woonoppervlakte

148 m²

Inhoud

669 m3

Bouwjaar

1972

  Download brochure
Meer weten? Uw makelaar voor dit pand is ...
Roy Ubachs
Neem contact op
Verkocht ovb

Dit object is 482 keer bekeken.

Vraag bezichtiging aan

Omschrijving

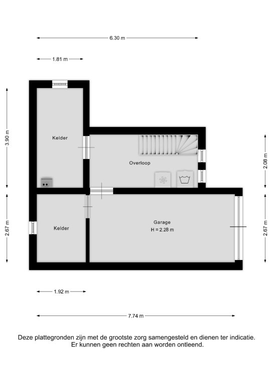
Wij presenteren u met genoegen deze vrijstaande bungalow. De woning beschikt over drie slaapkamers, inpandige garage, 13 zonnepanelen en is goed geïsoleerd (energielabel C). De woning kenmerkt zich door het vele lichtinval, fijne ruimtes en een centrale ligging! De maten van alle ruimtes vindt u terug in de plattegronden.

INDELING:

Souterrain/garage:
Via de oprit bereikt u de garage met een elektrische sectionaalpoort. Vanuit de garage heeft u toegang tot een provisiekelder en een trap naar de begane grond/keuken.

Begane grond:
Bij binnenkomst treft u de entree/hal die toegang biedt tot de meterkast, slaapkamers, badkamer, toilet en de woonkamer. De ruime woonkamer is voorzien van een Luxemburgse leistenenvloer, heeft veel lichtinval en loopt naadloos over naar de tuin die bereikbaar is door een grote schuifpui. Gesloten keuken is uitgerust met een spoelbak, tweetal koelkasten, keramische kookplaat, afzuigkap en oven.
Via de gang heeft u toegang tot:
-Drie slaapkamers, die alle voorzien zijn van een parketvloer.
-Badkamer met een ligbad, douche, tweede toilet, designradiator en een wastafel.
-Toilet met fonteintje.

Tuin:
Vanuit de woonkamer bereikt u via een schuifpui de goed verzorgde tuin, die volledige privacy biedt. De tuin beschikt over een terras, borders, een zij-ingang en een houten tuinberging met overkapping.

Leuk om te weten:
- Bouwjaar 1972;
- Hoofddak is geïsoleerd en 10 jaar geleden is de bitumendakbedekking vervangen;
- 13 zonnepanelen uit 2020;
- Kunststof kozijnen met HR+ glas;
- Woonoppervlakte ca. 148m²;
- Vrije ligging;
- Drie slaapkamers;
- Energielabel C;
- Tuin met optimale privacy, overkapping en tuinberging;
- Parkeergelegenheid op eigen terrein;
- Aanvaarding in overleg.

De waarborgsom/bankgarantie is 10% van de koopsom. De koper dient deze, indien de verkoper en koper dit overeenkomen, binnen 2 weken nadat het financieringsvoorbehoud is verlopen bij de desbetreffende notaris te deponeren.
Ter bescherming van de belangen van zowel koper als ook verkoper wordt uitdrukkelijk gesteld dat een koopovereenkomst met betrekking tot deze onroerende zaak eerst dan tot stand komt nadat koper en verkoper de koopovereenkomst hebben getekend (schriftelijkheidsvereiste).
Indien c.v.ketel en/of warmwatervoorziening een huurtoestel is, dient koper de huurovereenkomst over te nemen.

Alle door ons kantoor verstrekte informatie omtrent onroerende zaken, moet beschouwd worden als een uitnodiging om in onderhandeling te treden, en is geheel vrijblijvend! Alle vermelde maten en afmetingen zijn slechts bij benadering. Aan deze beperkte info kunnen geen rechten worden ontleend. Indien in enige documentatie of op enige website informatie staat die niet overeen komt met de werkelijkheid, dan geldt de feitelijke situatie waarin de woning zich bevindt, zoals koper deze tijdens de bezichtiging heeft kunnen waarnemen, en wordt de woning in deze feitelijke situatie/staat verkocht. Een (eventueel) bijgevoegde plattegrond dient uitsluitend als globale indicatie/visualisatie. Hieraan kunnen uitdrukkelijk geen rechten worden ontleend.

De makelaar Roy Ubachs nodigt u uit voor een bezichtiging.

Lees volledig +
Contact
Kantoor

Mauritslaan 4a
6161 HV Geleen

  085 - 020 7777
  info@lassoo.nl

Specificates
Afmetingen
  • Woonopp. 148 m²
  • Perceelopp. 838 m²
  • Inhoud 669 m³
Algemeen
  • Beschikbaarheid In overleg
Bouw
  • Soort Woningen
  • Type Vrijstaand
  • Bouwjaar 1972
Energie
  • Energielabel C
  • CV-ketel Combi
  • CV-ketel eigendom Ja
  • CV-ketel brandstof Gas
  • CV-ketel bouwjaar 2017
  • CV-ketel warmwater Ja
  • Aanwezige isolatie Dakisolatie
Indeling
  • Slaapkamers 3
  • Aparte douche Nee
  • Garage Ja
  • Kelder Ja
  • Tuin Nee
  • Balkon Nee
  • Dakterras Nee
Kadastrale gegevens
  • Sectie G
  • Sectie perceel 197
Voorziening
  • Parkeerplaats Ja
  • Lift Nee
  • Airco Nee
  • Openhaard Nee
  • Zwembad Nee
  • Zonnepanelen Ja
Lees volledig +
Klik hier om de kaart te bekijken

Plattegrond

Documenten

Vraag bezichtiging aan

Veld niet correct
Veld niet correct
Veld niet correct
Veld niet correct

Brochure aanvragen

Veld niet correct
Veld niet correct
Veld niet correct
Veld niet correct
Veld niet correct
Veld niet correct
Veld niet correct
Klanttevredenheid  9,3 Funda
SEH
Vastgoed ned
Qualis
Toestemming
Instellingen
Links

Wij plaatsen functionele en persoonlijke cookies op onze website. Functionele cookies plaatsen wij altijd, omdat deze noodzakelijk zijn om de website goed te laten werken en het gebruik te kunnen meten. Persoonlijke cookies worden gebruikt voor gepersonaliseerde en niet-gepersonaliseerde advertenties. Lees hier meer over in onze privacyverklaring en ons cookiebeleid.

Door op 'Accepteren' te klikken, ga je akkoord met het plaatsen van zowel functionele als persoonlijke cookies. Bij instellingen kun je een andere voorkeur aangeven. Je kunt je voorkeuren altijd later nog aanpassen op onze cookiepagina.

Wanneer je onze website bezoekt, kunnen we informatie over je bezoek verzamelen door het plaatsen van cookies. Je kunt hier aangeven welk type cookie we mogen plaatsen.

We gebruiken cookies van derden om je interesses te onthouden. Zodat wij en derde partijen je o.a. advertenties laten zien die zijn gebaseerd op jouw voorkeuren.

Lees hier meer over in onze privacyverklaring en ons cookiebeleid.