Klanttevredenheid  9,3 Funda
0 0 0 0 0 0| 0

Hommelweg 2 R 131

SUSTEREN

Ontdek de rust en sereniteit van EuroParcs Limburg in Susteren, waar deze charmante recreatiewoning op eigen grond gelegen aan de Hommelweg 2 R131 op jou wacht. Met drie comfortabele slaapkamers en een energielabel C, biedt deze woning een gezellig toevluchtsoord te midden van de natuurlijke...

Naar omschrijvingen

Prijs

€175.000,- k.k.

Type

Vrijstaand

Woonoppervlakte

54 m²

Inhoud

203 m3

Bouwjaar

2011

  Download brochure
Meer weten? Uw makelaar voor dit pand is ...
Ray van der Venne
Neem contact op

Dit object is 330 keer bekeken.

Vraag bezichtiging aan

Omschrijving

Ontdek de rust en sereniteit van EuroParcs Limburg in Susteren, waar deze charmante recreatiewoning op eigen grond gelegen aan de Hommelweg 2 R131 op jou wacht. Met drie comfortabele slaapkamers en een energielabel C, biedt deze woning een gezellig toevluchtsoord te midden van de natuurlijke schoonheid van Limburg. Geniet van de ruime tuin rondom, perfect voor ontspanning en buitenplezier. Gelegen op een gunstige locatie binnen het park, ben je slechts een steenworp verwijderd van alle voorzieningen die EuroParcs te bieden heeft. Welkom bij jouw ideale vakantiebestemming op Hommelweg 2 R131.

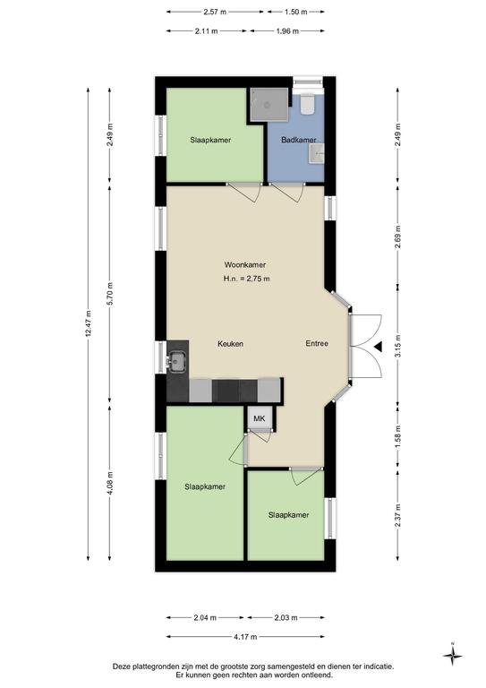
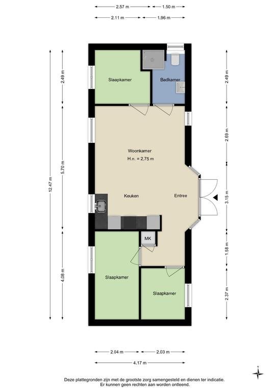
INDELING
Begane grond:
Bij binnenkomst in de woning aan Hommelweg 2 R131 betreedt u een lichte en ruime woonkamer, die direct verbonden is met de keuken. De woning beschikt over drie slaapkamers, waardoor er voldoende ruimte is voor familie en vrienden. Aan de rechterzijde van de woonkamer vindt u de entree, die toegang biedt tot de tuin rondom de woning. De keuken is praktisch ingericht en biedt alle benodigde voorzieningen.

De badkamer is modern en compleet uitgerust met een wastafel, toilet en douche. De woning heeft een gebruiksvriendelijke indeling die bijdraagt aan een aangenaam verblijf.

Moderne tuinserre – het hele jaar door genieten:
Stap binnen in deze stijlvolle en moderne tuinserre, volledig omgeven door glas en voorzien van een elegante glazen schuifpui. De serre vormt een harmonieuze overgang tussen binnen en buiten, waardoor je in elk seizoen kunt genieten van natuurlijk licht, het uitzicht op de tuin en ultieme rust.

Of je nu ’s ochtends de eerste zonnestralen meepakt, ’s middags ontspannen werkt of ’s avonds gezellig borrelt met vrienden: deze tuinserre biedt een heerlijke plek voor elk moment van de dag. Dankzij de schuifpui open je de ruimte in een handomdraai, waardoor binnen en buiten moeiteloos in elkaar overlopen.

Een plek om te genieten. Elke dag opnieuw.

Leuk om te weten:
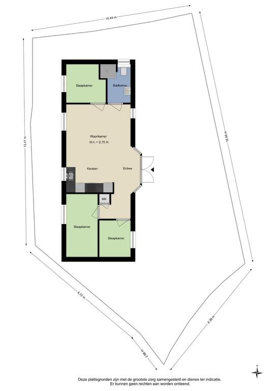
- Bouwjaar 2011 (conform BAG), eigen perceel: 225 m² eigen grond (conform kadaster);
- Woonoppervlakte ca. 54 m² (meetrapport aanwezig);
- Inhoud: ca. 203 m³;
- Gelegen op vakantiepark EuroParcs Resort Limburg;
- Geheel voorzien van 'kunststof kozijnen met dubbele glas;
- Servicebijdrage park: ongeveer € 2137,27;
- Parkeren op eigen terrein;
- Permanente bewoning is niet toegestaan!

HISTORIE:
EuroParcs Resort Limburg is een vakantiepark in Susteren, van oudsher bekend als Recreatiepark Landgoed Hommelheide, in de Nederlandse gemeente Echt-Susteren.

Het bij een zandontginningsplas gelegen recreatiepark heeft uitsluitend recreatiewoningen. Tot 2006 was Recreatie Centra Nederland (RCN) eigenaar van het bedrijf. Sinds de overname door EuroParcs is het park gemoderniseerd, waarbij het aantal bungalows werd uitgebreid ten koste van de kampeerplaatsen.

De aanwezige zwemplas is in 1930 ontstaan. In 1956 is van het zandgat een recreatieve voorziening gemaakt. Vanwege de voorgeschiedenis wordt de plas ook wel aangeduid als de Bagger. De plas is een van de door waterschap Roer en Overmaas op de kwaliteit van het oppervlaktewater gecontroleerde zwemgelegenheden.

EuroParcs Resort Limburg is voorzien van alle faciliteiten waaronder een binnenzwembad, strandbad, dierenweide, indoor-speelparadijs, horeca-faciliteiten o.a. Friends 'n Bites, supermarkt enz. enz. Voor uitstapjes naar bijvoorbeeld Maasmechelen Village of het gezellige Aachen zit u kort bij zowel de Duitse als Belgische grens.

Interesse? Wij nemen graag de tijd voor u! Neem contact op via het contactformulier op de diverse websites of op onze website en we laten u de woning graag zien.

Overige informatie:
De gebruikelijke waarborgsom/bankgarantie is 10% van de koopsom. De koper dient deze, indien de verkoper en koper dit overeenkomen, binnen 2 weken nadat het financieringsvoorbehoud is verlopen bij de desbetreffende notaris te deponeren.

Indien c.v.-ketel en/of warmwatervoorziening een huurtoestel is, dient koper de huurovereenkomst over te nemen.

Toelichtingsclausule NEN2580
De Meetinstructie is gebaseerd op de NEN2580. De Meetinstructie is bedoeld om een meer eenduidige manier van meten toe te passen voor het geven van een indicatie van de gebruiksoppervlakte. De Meetinstructie sluit verschillen in meetuitkomsten niet volledig uit, door bijvoorbeeld interpretatiever- schillen, afrondingen of beperkingen bij het uitvoeren van de meting.

Schriftelijkheidsvereiste
Conform artikel 7:2 Burgerlijk Wetboek, is er pas sprake van een rechtsgeldige koopovereenkomst als de particuliere verkoper en de particuliere koper de koopovereenkomst hebben ondertekend. Een mondelinge overeenstemming tussen de particuliere verkoper en de particuliere koper is niet rechts- geldig.

Disclaimer
Alle door ons kantoor verstrekte informatie omtrent onroerende zaken, moet beschouwd worden als een uitnodiging om in onderhandeling te treden, en is geheel vrijblijvend! Alle vermelde maten en afmetingen zijn slechts bij benadering. Aan deze beperkte informatie kunnen geen rechten worden ontleend. Indien in enige documentatie of op enige website informatie staat die niet overeen komt met de werkelijkheid, dan geldt de feitelijke situatie waarin de woning zich bevindt, zoals koper deze tijdens de bezichtiging heeft kunnen waarnemen, en wordt de woning in deze feitelijke situatie/staat verkocht. Een (eventueel) bijgevoegde plattegrond dient uitsluitend als globale indicatie/visualisatie. Hieraan kunnen uitdrukkelijk geen rechten worden ontleend.

De makelaar Ray van der Venne nodigt u graag uit voor een bezichtiging.

Lees volledig +
Contact
Kantoor

Mauritslaan 4a
6161 HV Geleen

  085 - 020 7777
  info@lassoo.nl

Specificates
Afmetingen
  • Woonopp. 54 m²
  • Perceelopp. 450 m²
  • Inhoud 203 m³
Algemeen
  • Beschikbaarheid In overleg
Bouw
  • Soort Woningen
  • Type Vrijstaand
  • Bouwjaar 2011
Energie
  • Energielabel C
  • CV-ketel Combi
  • CV-ketel eigendom Ja
  • CV-ketel brandstof Gas
  • CV-ketel warmwater Ja
Indeling
  • Slaapkamers 3
  • Aparte douche Nee
  • Garage Nee
  • Kelder Nee
  • Tuin Nee
  • Balkon Nee
  • Dakterras Nee
Kadastrale gegevens
  • Sectie H
  • Sectie perceel 2079
Voorziening
  • Parkeerplaats Nee
  • Lift Nee
  • Airco Nee
  • Openhaard Nee
  • Zwembad Nee
Lees volledig +
Klik hier om de kaart te bekijken

Plattegrond

Documenten

Vraag bezichtiging aan

Veld niet correct
Veld niet correct
Veld niet correct
Veld niet correct

Brochure aanvragen

Veld niet correct
Veld niet correct
Veld niet correct
Veld niet correct
Veld niet correct
Veld niet correct
Veld niet correct
Klanttevredenheid  9,3 Funda
SEH
Vastgoed ned
Qualis
Toestemming
Instellingen
Links

Wij plaatsen functionele en persoonlijke cookies op onze website. Functionele cookies plaatsen wij altijd, omdat deze noodzakelijk zijn om de website goed te laten werken en het gebruik te kunnen meten. Persoonlijke cookies worden gebruikt voor gepersonaliseerde en niet-gepersonaliseerde advertenties. Lees hier meer over in onze privacyverklaring en ons cookiebeleid.

Door op 'Accepteren' te klikken, ga je akkoord met het plaatsen van zowel functionele als persoonlijke cookies. Bij instellingen kun je een andere voorkeur aangeven. Je kunt je voorkeuren altijd later nog aanpassen op onze cookiepagina.

Wanneer je onze website bezoekt, kunnen we informatie over je bezoek verzamelen door het plaatsen van cookies. Je kunt hier aangeven welk type cookie we mogen plaatsen.

We gebruiken cookies van derden om je interesses te onthouden. Zodat wij en derde partijen je o.a. advertenties laten zien die zijn gebaseerd op jouw voorkeuren.

Lees hier meer over in onze privacyverklaring en ons cookiebeleid.