Klanttevredenheid  9,3 Funda
0 0 0 0 0 0| 0

St.Pieterstraat 265

KERKRADE

Met trots mogen wij een sfeervolle vrijstaande woning in de wijk "De Vink" aanbieden. De woning beschikt over een royale woonkamer, drie slaapkamers, twee garages en een diepe, bosachtige tuin met veel privacy. Dankzij de praktische indeling, ruime kamers en gunstige ligging is dit een ideale...

Naar omschrijvingen

Prijs

€285.000,- k.k.

Status

Verkocht

Type

Vrijstaand

Woonoppervlakte

105 m²

Inhoud

456 m3

Bouwjaar

1957

  Download brochure
Meer weten? Uw makelaar voor dit pand is ...
Roy Ubachs
Neem contact op
Verkocht

Dit object is 1.366 keer bekeken.

Vraag bezichtiging aan

Omschrijving

Met trots mogen wij een sfeervolle vrijstaande woning in de wijk "De Vink" aanbieden. De woning beschikt over een royale woonkamer, drie slaapkamers, twee garages en een diepe, bosachtige tuin met veel privacy. Dankzij de praktische indeling, ruime kamers en gunstige ligging is dit een ideale woning voor gezinnen die licht en rust waarderen.
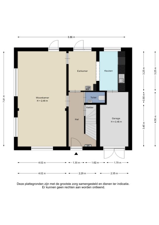
De maten van alle ruimtes vindt u terug in de plattegronden!

Leuk om te weten:
- Bouwjaar: 1957 (conform BAG);
- Perceel: 690m² (conform kadaster);
- Hoofddak is in 2015 geheel geïsoleerd en vervangen;
- Het gehele huis is voorzien van hardhouten kozijnen en dubbel glas;
- 3 slaapkamers op de eerste verdieping;
- Twee garages;
- Woning dient gerenoveerd te worden;
- Aanvaarding in overleg!

Souterrain:
De woning beschikt over een praktische kelder die bereikbaar is via een vaste trap. Ideaal voor opslag, proviand of hobbyruimte.

Begane grond:
Bij binnenkomst stap je in de hal, die toegang biedt tot het toilet met fonteintje, de meterkast, de keldertrap, de trap naar de eerste verdieping, de woonkamer en de keuken met eetruimte.

De woonkamer is licht en ruim door drie grote ramen en is afgewerkt met parketvloer. Via een tuindeur is er directe toegang tot de tuin. De keuken met eetruimte vormt één open ruimte. De keuken is voorzien van een oven, 4-pits gasfornuis en afzuigkap. In deze ruimte bevindt zich ook de CV-ketel (eigendom). Vanuit de keuken is de garage inpandig te bereiken; deze beschikt over een dubbele garagedeur.

Eerste verdieping:
De overloop biedt toegang tot drie slaapkamers, de badkamer en de vlizo naar de zolder.
De slaapkamer aan de linkerzijde van de achtergevel beschikt over een balkon over de gehele achtergevel en is voorzien van zeil. De slaapkamer aan de rechterzijde van de achtergevel heeft een praktische muurkast en is eveneens voorzien van zeil.
De badkamer is voorzien van een inloopdouche en een wastafel.

Zolder:
De zolder is bereikbaar via de vlizo op de overloop en biedt extra bergruimte.

Garage:
De inpandige garage ligt aan de voorzijde van de woning, de tweede garage bevindt zich achterin de tuin en is bereikbaar via een weg achter de woning.

Tuin:
De diepe tuin is bosachtig en groen, met meerdere zitplekken en veel privacy. De tuin is toegankelijk via de woning, de achterpoort of de tweede garagepoort en biedt een heerlijke plek om te ontspannen of te spelen.

Interesse? Wij nemen graag de tijd voor u! Neem contact op via het contactformulier op Funda of op onze website en we laten u de woning graag zien.

Overige informatie
De gebruikelijke waarborgsom/bankgarantie is 10% van de koopsom. De koper dient deze, indien de verkoper en koper dit overeenkomen, binnen 2 weken nadat het financieringsvoorbehoud is verlopen bij de desbetreffende notaris te deponeren.

Toelichtingsclausule NEN2580
De Meetinstructie is gebaseerd op de NEN2580. De Meetinstructie is bedoeld om een meer eenduidige manier van meten toe te passen voor het geven van een indicatie van de gebruiksoppervlakte. De Meetinstructie sluit verschillen in meetuitkomsten niet volledig uit, door bijvoorbeeld interpretatiever- schillen, afrondingen of beperkingen bij het uitvoeren van de meting.

Schriftelijkheidsvereiste
Conform artikel 7:2 Burgerlijk Wetboek, is er pas sprake van een rechtsgeldige koopovereenkomst als de particuliere verkoper en de particuliere koper de koopovereenkomst hebben ondertekend. Een mondelinge overeenstemming tussen de particuliere verkoper en de particuliere koper is niet rechts- geldig.

Disclaimer
Alle door ons kantoor verstrekte informatie omtrent onroerende zaken, moet beschouwd worden als een uitnodiging om in onderhandeling te treden, en is geheel vrijblijvend! Alle vermelde maten en afmetingen zijn slechts bij benadering. Aan deze beperkte informatie kunnen geen rechten worden ontleend. Indien in enige documentatie of op enige website informatie staat die niet overeen komt met de werkelijkheid, dan geldt de feitelijke situatie waarin de woning zich bevindt, zoals koper deze tijdens de bezichtiging heeft kunnen waarnemen, en wordt de woning in deze feitelijke situatie/staat verkocht. Een (eventueel) bijgevoegde plattegrond dient uitsluitend als globale indicatie/visualisatie. Hieraan kunnen uitdrukkelijk geen rechten worden ontleend.

De makelaar Roy Ubachs nodigt u graag uit voor een bezichtiging.

Lees volledig +
Contact
Kantoor

Mauritslaan 4a
6161 HV Geleen

  085 - 020 7777
  info@lassoo.nl

Specificates
Afmetingen
  • Woonopp. 105 m²
  • Perceelopp. 690 m²
  • Inhoud 456 m³
Algemeen
  • Beschikbaarheid In overleg
Bouw
  • Soort Woningen
  • Type Vrijstaand
  • Bouwjaar 1957
Energie
  • Energielabel F
  • CV-ketel Combi
  • CV-ketel eigendom Ja
  • CV-ketel brandstof Gas
  • CV-ketel bouwjaar 2011
  • CV-ketel warmwater Ja
  • Aanwezige isolatie Dakisolatie, glasisolatie
Indeling
  • Slaapkamers 3
  • Aparte douche Nee
  • Garage Ja
  • Kelder Ja
  • Tuin Ja
  • Tuin ligging West
  • Balkon Ja
  • Dakterras Nee
Kadastrale gegevens
  • Sectie L
  • Sectie perceel 722
Voorziening
  • Parkeerplaats Ja
  • Lift Nee
  • Airco Nee
  • Openhaard Nee
  • Zwembad Nee
Lees volledig +
Klik hier om de kaart te bekijken

Afbeeldingen

Bekijk alle +

Video's

Plattegrond

Documenten

Vraag bezichtiging aan

Veld niet correct
Veld niet correct
Veld niet correct
Veld niet correct

Brochure aanvragen

Veld niet correct
Veld niet correct
Veld niet correct
Veld niet correct
Veld niet correct
Veld niet correct
Veld niet correct
Klanttevredenheid  9,3 Funda
SEH
Vastgoed ned
Qualis
Toestemming
Instellingen
Links

Wij plaatsen functionele en persoonlijke cookies op onze website. Functionele cookies plaatsen wij altijd, omdat deze noodzakelijk zijn om de website goed te laten werken en het gebruik te kunnen meten. Persoonlijke cookies worden gebruikt voor gepersonaliseerde en niet-gepersonaliseerde advertenties. Lees hier meer over in onze privacyverklaring en ons cookiebeleid.

Door op 'Accepteren' te klikken, ga je akkoord met het plaatsen van zowel functionele als persoonlijke cookies. Bij instellingen kun je een andere voorkeur aangeven. Je kunt je voorkeuren altijd later nog aanpassen op onze cookiepagina.

Wanneer je onze website bezoekt, kunnen we informatie over je bezoek verzamelen door het plaatsen van cookies. Je kunt hier aangeven welk type cookie we mogen plaatsen.

We gebruiken cookies van derden om je interesses te onthouden. Zodat wij en derde partijen je o.a. advertenties laten zien die zijn gebaseerd op jouw voorkeuren.

Lees hier meer over in onze privacyverklaring en ons cookiebeleid.