Klanttevredenheid  9,3 Funda
0 0 0 0 0 0| 0

Kasperenstraat 21 A

KERKRADE

Welkom bij de Kasperenstraat 21-a te Kerkrade.
Bent u op zoek naar een compacte en praktische woning op een centrale locatie? Dan is deze woning aan de Kasperenstraat 21-a zeker het bekijken waard. Met een woonoppervlakte van ca. 60 m², energielabel B en een functionele indeling biedt...

Naar omschrijvingen

Prijs

€109.000,- k.k.

Status

Verkocht ovb

Type

Tussenwoning

Woonoppervlakte

60 m²

Inhoud

217 m3

Bouwjaar

1994

  Download brochure
Meer weten? Uw makelaar voor dit pand is ...
Ray van der Venne
Neem contact op
Verkocht ovb

Dit object is 2.034 keer bekeken.

Vraag bezichtiging aan

Omschrijving

Welkom bij de Kasperenstraat 21-a te Kerkrade.
Bent u op zoek naar een compacte en praktische woning op een centrale locatie? Dan is deze woning aan de Kasperenstraat 21-a zeker het bekijken waard. Met een woonoppervlakte van ca. 60 m², energielabel B en een functionele indeling biedt deze woning een uitstekende basis voor starters of alleenstaanden.

De woning is gelegen in een rustige woonomgeving met diverse voorzieningen zoals winkels, openbaar vervoer en uitvalswegen binnen handbereik.

PROJECTNOTARIS: Burgemeestre & Partners Notariaat
Leuk om te weten:
- Bouwjaar: 1994 (conform BAG);
- Woonoppervlakte ca. 60 m² (NEN 2580 meetrapport aanwezig);
- Energielabel B;
- c.v.-ketel Remeha (bwjr 2020) eigendom;
- Aanvaarding: in overleg.

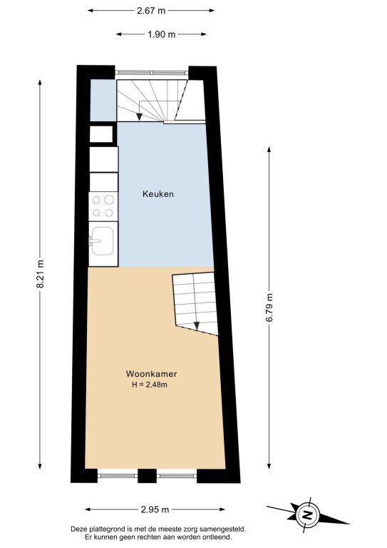
INDELING

Begane grond:
Via de overdekte entree bereikt u de royale, volledig betegelde hal met meterkast en toegang tot de deels betegelde toiletruimte met staand toilet en fonteintje. Vanuit de hal leidt de trap naar de eerste verdieping.

Eerste verdieping:
Op de eerste verdieping bevindt zich de woonkamer met een open, eenvoudig uitgevoerde keuken. De ruimte is praktisch ingericht en biedt diverse indelingsmogelijkheden. Vanuit de woonkamer bereikt u middels een vaste trap de tweede verdieping.

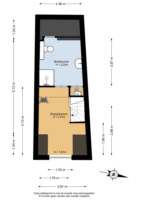
Tweede verdieping
Op deze verdieping bevinden zich de slaapkamer en de volledig betegelde badkamer, voorzien van een douche, toilet en wastafel. Vanuit de badkamer is de opstelling van de cv-ketel bereikbaar. In de slaapkamer heeft u middels een ladder toegang tot een praktische, kleine bergruimte.

Buitenruimte
De woning beschikt niet over een tuin of balkon.

Kortom: een praktische en betaalbare woning met alle basisvoorzieningen, ideaal voor wie eenvoudig en comfortabel wil wonen op een centrale locatie.

Bent U benieuwd naar welke renovatie mogelijkheden door verkoper bij deze woning worden aangeboden? Neem dan contact met ons op!

De waarborgsom/bankgarantie is 10% van de koopsom. De koper dient deze, indien de verkoper en koper dit overeenkomen, binnen 2 weken nadat het financieringsvoorbehoud is verlopen bij de desbetreffende notaris te deponeren.
Ter bescherming van de belangen van zowel koper als ook verkoper wordt uitdrukkelijk gesteld dat een koopovereenkomst met betrekking tot deze onroerende zaak eerst dan tot stand komt nadat koper en verkoper de koopovereenkomst hebben getekend (schriftelijkheidsvereiste).
Indien c.v. ketel en/of warmwatervoorziening een huurtoestel is, dient koper de huurovereenkomst over te nemen.

Alle door ons kantoor verstrekte informatie omtrent onroerende zaken, moet beschouwd worden als een uitnodiging om in onderhandeling te treden, en is geheel vrijblijvend! Alle vermelde maten en afmetingen zijn slechts bij benadering. Aan deze beperkte info kunnen geen rechten worden ontleend. Indien in enige documentatie of op enige website informatie staat die niet overeen komt met de werkelijkheid, dan geldt de feitelijke situatie waarin de woning zich bevindt, zoals koper deze tijdens de bezichtiging heeft kunnen waarnemen, en wordt de woning in deze feitelijke situatie/staat verkocht. Een (eventueel) bijgevoegde plattegrond dient uitsluitend als globale indicatie/visualisatie. Hieraan kunnen uitdrukkelijk geen rechten worden ontleend.

De makelaar Ray van der Venne nodigt u uit voor een bezichtiging.

Lees volledig +
Contact
Kantoor

Mauritslaan 4a
6161 HV Geleen

  085 - 020 7777
  info@lassoo.nl

Specificates
Afmetingen
  • Woonopp. 60 m²
  • Perceelopp. 26 m²
  • Inhoud 217 m³
Algemeen
  • Beschikbaarheid In overleg
Bouw
  • Soort Woningen
  • Type Tussenwoning
  • Bouwjaar 1994
Energie
  • Energielabel B
  • CV-ketel hr
  • CV-ketel eigendom Ja
  • CV-ketel warmwater Nee
Indeling
  • Slaapkamers 1
  • Aparte douche Nee
  • Garage Nee
  • Kelder Nee
  • Tuin Nee
  • Balkon Nee
  • Dakterras Nee
Kadastrale gegevens
  • Sectie H
  • Sectie perceel 2211
Voorziening
  • Parkeerplaats Nee
  • Lift Nee
  • Airco Nee
  • Openhaard Nee
  • Zwembad Nee
Lees volledig +
Klik hier om de kaart te bekijken

Plattegrond

Vraag bezichtiging aan

Veld niet correct
Veld niet correct
Veld niet correct
Veld niet correct

Brochure aanvragen

Veld niet correct
Veld niet correct
Veld niet correct
Veld niet correct
Veld niet correct
Veld niet correct
Veld niet correct
Klanttevredenheid  9,3 Funda
SEH
Vastgoed ned
Qualis
Toestemming
Instellingen
Links

Wij plaatsen functionele en persoonlijke cookies op onze website. Functionele cookies plaatsen wij altijd, omdat deze noodzakelijk zijn om de website goed te laten werken en het gebruik te kunnen meten. Persoonlijke cookies worden gebruikt voor gepersonaliseerde en niet-gepersonaliseerde advertenties. Lees hier meer over in onze privacyverklaring en ons cookiebeleid.

Door op 'Accepteren' te klikken, ga je akkoord met het plaatsen van zowel functionele als persoonlijke cookies. Bij instellingen kun je een andere voorkeur aangeven. Je kunt je voorkeuren altijd later nog aanpassen op onze cookiepagina.

Wanneer je onze website bezoekt, kunnen we informatie over je bezoek verzamelen door het plaatsen van cookies. Je kunt hier aangeven welk type cookie we mogen plaatsen.

We gebruiken cookies van derden om je interesses te onthouden. Zodat wij en derde partijen je o.a. advertenties laten zien die zijn gebaseerd op jouw voorkeuren.

Lees hier meer over in onze privacyverklaring en ons cookiebeleid.