Klanttevredenheid  9,3 Funda
0 0 0 0 0 0| 0

Hofstraat 19

HEERLEN

Op zoek naar een praktische tussenwoning in een rustige en verkeersluwe wijk? Deze geschakelde woning biedt een woonoppervlakte van ca. 100 m², drie slaapkamers, een ruime zolder en een omsloten achtertuin. Met een praktische indeling en veel lichtinval is dit een ideale woning voor starters...

Naar omschrijvingen

Prijs

€195.000,- k.k.

Status

Onder bod

Type

Tussenwoning

Woonoppervlakte

100 m²

Inhoud

424 m3

Bouwjaar

1974

  Download brochure
Meer weten? Uw makelaar voor dit pand is ...
Ray van der Venne
Neem contact op
Onder bod

Dit object is 566 keer bekeken.

Vraag bezichtiging aan

Omschrijving

Op zoek naar een praktische tussenwoning in een rustige en verkeersluwe wijk? Deze geschakelde woning biedt een woonoppervlakte van ca. 100 m², drie slaapkamers, een ruime zolder en een omsloten achtertuin. Met een praktische indeling en veel lichtinval is dit een ideale woning voor starters of jonge gezinnen.

Leuk om te weten:
- Bouwjaar 1974 (conform BAG), perceeloppervlakte ca. 136 m² (conform kadaster);
- Woonoppervlakte ca. 100 m², overige inpandige ruimte ca. 16 m² (meetrapport aanwezig);
- Energielabel C;
- Omsloten achtertuin met terras en volwassen beplanting;
- Berging met spoelbak en meterkast;
- Parkeren op eigen oprit;
- De maten van alle ruimtes vindt u terug in de plattegronden;
- Aanvaarding in overleg!

LET OP: Projectnotaris Notariskantoor Unie

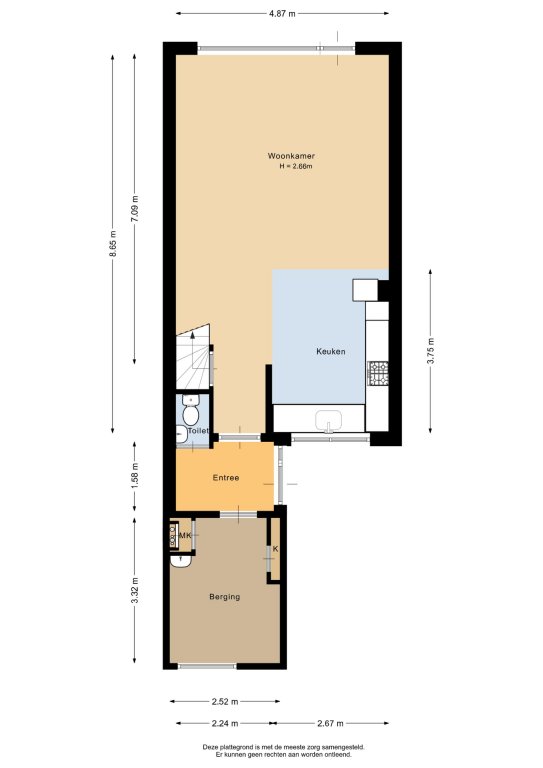
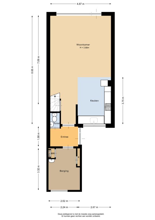
Begane grond:
Bij binnenkomst in de hal heeft u toegang tot de woonkamer, het toilet met fonteintje en de inpandige berging.

De royale woonkamer loopt door tot achterin de woning en biedt veel lichtinval dankzij het grote raampartij aan de achterzijde. Via de woonkamer is de deur naar de trap naar de eerste verdieping bereikbaar.
De open keuken is voorzien van een 5-pits gaskookplaat, oven, afzuigkap, koelkast, vrieskast en vaatwasser, en ruime boven- en onderkasten. Vanuit de woonkamer loopt u direct de tuin in.

Eerste verdieping:
Vanaf de overloop heeft u toegang tot drie slaapkamers, de badkamer en de vlizo. De slaapkamer aan de voorzijde beschikt over een muurkast en een bergingsruimte die als inloopkast kan dienen.

De volledig betegelde badkamer is praktisch ingericht en beschikt over een ligbad, aparte douche, badmeubel, wandcloset, designradiator en inbouwspots.

Zolder:
Via de vlizotrap bereikt u de zolder, voorzien van de CV-combi-installatie (Intergas HRE, bouwjaar 2023), een spoelbak en een dakraam. De zolder biedt extra bergruimte of kan worden gebruikt als hobby- of werkruimte.

Tuin:
De omsloten achtertuin met houten schuttingen is deels bestraat en biedt een stuk open grond voor beplanting of een gazon. De volwassen beplanting zorgt voor veel privacy en een fijne plek om te ontspannen.

Berging:
De inpandige berging beschikt over een muurkast, meterkast en spoelbak, ideaal voor praktische opslag of fietsen.

Interesse? Wij nemen graag de tijd voor u! Neem contact op via het contactformulier op Funda of op onze website en we laten u de woning graag zien. Komt een fysieke afspraak niet zo goed uit, bel dan voor digitale mogelijkheden!
De waarborgsom/bankgarantie is 10% van de koopsom. De koper dient deze, indien de verkoper en koper dit overeenkomen, binnen 2 weken nadat het financieringsvoorbehoud is verlopen bij de desbetreffende notaris te deponeren.

Ter bescherming van de belangen van zowel koper als ook verkoper wordt uitdrukkelijk gesteld dat een koopovereenkomst met betrekking tot deze onroerende zaak eerst dan tot stand komt nadat koper en verkoper de koopovereenkomst hebben getekend (schriftelijkheidsvereiste).

Alle door ons kantoor verstrekte informatie omtrent onroerende zaken, moet beschouwd worden als een uitnodiging om in onderhandeling te treden, en is geheel vrijblijvend! Alle vermelde maten en afmetingen zijn slechts bij benadering. Aan deze beperkte info kunnen geen rechten worden ontleend. Indien in enige documentatie of op enige website informatie staat die niet overeen komt met de werkelijkheid, dan geldt de feitelijke situatie waarin de woning zich bevindt, zoals koper deze tijdens de bezichtiging heeft kunnen waarnemen, en wordt de woning in deze feitelijke situatie/staat verkocht. Een (eventueel) bijgevoegde plattegrond dient uitsluitend als globale indicatie/visualisatie. Hieraan kunnen uitdrukkelijk geen rechten worden ontleend.

De makelaar Ray van der Venne nodigt u uit voor een bezichtiging.

Lees volledig +
Contact
Kantoor

Mauritslaan 4a
6161 HV Geleen

  085 - 020 7777
  info@lassoo.nl

Specificates
Afmetingen
  • Woonopp. 100 m²
  • Perceelopp. 136 m²
  • Inhoud 424 m³
Algemeen
  • Beschikbaarheid In overleg
Bouw
  • Soort Woningen
  • Type Tussenwoning
  • Bouwjaar 1974
Energie
  • Energielabel C
  • CV-ketel hr
  • CV-ketel eigendom Ja
  • CV-ketel brandstof Gas
  • CV-ketel warmwater Ja
  • Aanwezige isolatie Dakisolatie, glasisolatie
Indeling
  • Slaapkamers 4
  • Aparte douche Nee
  • Garage Nee
  • Kelder Nee
  • Tuin Ja
  • Tuin ligging West
  • Balkon Nee
  • Dakterras Nee
Kadastrale gegevens
  • Sectie O
  • Sectie perceel 1057
Voorziening
  • Parkeerplaats Nee
  • Lift Nee
  • Airco Nee
  • Openhaard Nee
  • Zwembad Nee
Lees volledig +
Klik hier om de kaart te bekijken

Plattegrond

Documenten

Vraag bezichtiging aan

Veld niet correct
Veld niet correct
Veld niet correct
Veld niet correct

Brochure aanvragen

Veld niet correct
Veld niet correct
Veld niet correct
Veld niet correct
Veld niet correct
Veld niet correct
Veld niet correct
Klanttevredenheid  9,3 Funda
SEH
Vastgoed ned
Qualis
Toestemming
Instellingen
Links

Wij plaatsen functionele en persoonlijke cookies op onze website. Functionele cookies plaatsen wij altijd, omdat deze noodzakelijk zijn om de website goed te laten werken en het gebruik te kunnen meten. Persoonlijke cookies worden gebruikt voor gepersonaliseerde en niet-gepersonaliseerde advertenties. Lees hier meer over in onze privacyverklaring en ons cookiebeleid.

Door op 'Accepteren' te klikken, ga je akkoord met het plaatsen van zowel functionele als persoonlijke cookies. Bij instellingen kun je een andere voorkeur aangeven. Je kunt je voorkeuren altijd later nog aanpassen op onze cookiepagina.

Wanneer je onze website bezoekt, kunnen we informatie over je bezoek verzamelen door het plaatsen van cookies. Je kunt hier aangeven welk type cookie we mogen plaatsen.

We gebruiken cookies van derden om je interesses te onthouden. Zodat wij en derde partijen je o.a. advertenties laten zien die zijn gebaseerd op jouw voorkeuren.

Lees hier meer over in onze privacyverklaring en ons cookiebeleid.