Klanttevredenheid  9,3 Funda
0 0 0 0 0 0| 0

Promenade 97

HEERLEN

Welkom aan de Promenade 97 in Heerlen! Dit royale maisonnette-appartement uit 1953 combineert ruimte, licht en een perfecte centrum locatie. Met 83 m² woonoppervlak, drie slaapkamers, een balkon én alle dagelijkse voorzieningen op loopafstand, is dit een ideale plek voor iedereen die...

Naar omschrijvingen

Prijs

€139.000,- k.k.

Status

Verkocht

Type

Maisonnette

Woonoppervlakte

83 m²

Inhoud

257 m3

Bouwjaar

1953

  Download brochure
Meer weten? Uw makelaar voor dit pand is ...
Ray van der Venne
Neem contact op
Verkocht

Dit object is 907 keer bekeken.

Vraag bezichtiging aan

Omschrijving

Welkom aan de Promenade 97 in Heerlen! Dit royale maisonnette-appartement uit 1953 combineert ruimte, licht en een perfecte centrum locatie. Met 83 m² woonoppervlak, drie slaapkamers, een balkon én alle dagelijkse voorzieningen op loopafstand, is dit een ideale plek voor iedereen die comfortabel en stads wil wonen. Hier leef je midden in het bruisende hart van Heerlen, maar toch met de rust van een goed ingedeelde woning.

LET OP: Projectnotaris Notariskantoor Unie

Leuk om te weten:
- Bouwjaar 1953 (conform BAG);
- Woonoppervlakte ca. 83m², (meetrapport aanwezig);
- Inhoud: ca. 257m³;
- Energielabel in aanvraag;
- Voorzien van houten vloeren;
- Houten kozijnen met enkele beglazing;
- Blokverwarming;
- VvE-bijdrage: € 230,- per maand;
- Balkon aan de achterzijde met uitzicht over de Promenade;
- 3 slaapkamers aanwezig;
- Praktische muurkasten op beide verdiepingen voor extra opbergruimte;
- Lift aanwezig;
- Eigen berging in het souterrain;
- De maten van alle ruimtes vindt u terug in de plattegronden.

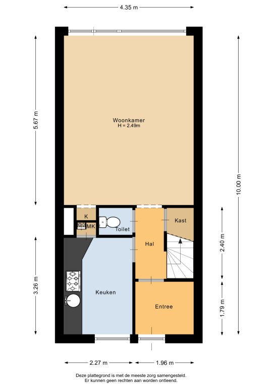
INDELING:
Souterrain:
In het souterrain bevindt zich een eigen, praktische berging. Ideaal voor fietsen, voorraad of overige spullen.

Begane grond:
De centrale entree beschikt over een bellentableau, brievenbussen, trappenhuis en lift.

3e Verdieping:
Op de derde verdieping ligt de entree van het appartement. De hal leidt naar een gang met muurkast en toegang tot de woonkamer, gesloten keuken, toiletruimte en de trap naar de bovenverdieping.
De woonkamer ontvangt veel licht dankzij een groot raam en biedt een prettige leefruimte.
De gesloten keuken is eenvoudig maar functioneel, voorzien van een keukenblok, spoelbak, afzuigkap, boven- en onderkasten, en een muurkast met de meterkast.

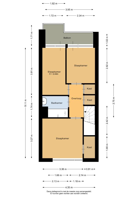
4e Verdieping:
De overloop op de vierde verdieping beschikt over twee muurkasten en geeft toegang tot drie slaapkamers en de badkamer.
- Slaapkamer 1: voorzien van een muurkast.
- Slaapkamer 2: met toegang tot het balkon.
- Slaapkamer 3: eveneens met toegang tot het balkon.
Het balkon vormt een fijne plek om buiten te zitten en kijkt uit over de levendige Promenade.
De badkamer is half betegeld en uitgerust met een ligbad met douchekop en glazen douchewand, evenals een wastafel.

Bent u benieuwd naar welke renovatie mogelijkheden door verkoper bij deze woning worden aangeboden? Neem dan contact met ons op.

De waarborgsom/bankgarantie is 10% van de koopsom. De koper dient deze, indien de verkoper en koper dit overeenkomen, binnen 2 weken nadat het financieringsvoorbehoud is verlopen bij de desbetreffende notaris te deponeren.
Ter bescherming van de belangen van zowel koper als ook verkoper wordt uitdrukkelijk gesteld dat een koopovereenkomst met betrekking tot deze onroerende zaak eerst dan tot stand komt nadat koper en verkoper de koopovereenkomst hebben getekend (schriftelijkheidsvereiste).
Indien c.v. ketel en/of warmwatervoorziening een huurtoestel is, dient koper de huurovereenkomst over te nemen.

Alle door ons kantoor verstrekte informatie omtrent onroerende zaken, moet beschouwd worden als een uitnodiging om in onderhandeling te treden, en is geheel vrijblijvend! Alle vermelde maten en afmetingen zijn slechts bij benadering. Aan deze beperkte info kunnen geen rechten worden ontleend. Indien in enige documentatie of op enige website informatie staat die niet overeen komt met de werkelijkheid, dan geldt de feitelijke situatie waarin de woning zich bevindt, zoals koper deze tijdens de bezichtiging heeft kunnen waarnemen, en wordt de woning in deze feitelijke situatie/staat verkocht. Een (eventueel) bijgevoegde plattegrond dient uitsluitend als globale indicatie/visualisatie. Hieraan kunnen uitdrukkelijk geen rechten worden ontleend.

De makelaar Ray van der Venne nodigt u uit voor een bezichtiging.

Lees volledig +
Contact
Kantoor

Mauritslaan 4a
6161 HV Geleen

  085 - 020 7777
  info@lassoo.nl

Specificates
Afmetingen
  • Woonopp. 83 m²
  • Inhoud 257 m³
Algemeen
  • Beschikbaarheid In overleg
Bouw
  • Soort Woningen
  • Type Maisonnette
  • Bouwjaar 1953
Energie
  • Energielabel D
  • CV-ketel eigendom Nee
  • CV-ketel warmwater Nee
Indeling
  • Slaapkamers 3
  • Aparte douche Nee
  • Garage Nee
  • Kelder Ja
  • Tuin Nee
  • Balkon Ja
  • Dakterras Nee
Kadastrale gegevens
  • Sectie D
  • Sectie perceel 9422
Voorziening
  • Parkeerplaats Nee
  • Lift Nee
  • Airco Nee
  • Openhaard Nee
  • Zwembad Nee
Lees volledig +
Klik hier om de kaart te bekijken

Plattegrond

Documenten

Vraag bezichtiging aan

Veld niet correct
Veld niet correct
Veld niet correct
Veld niet correct

Brochure aanvragen

Veld niet correct
Veld niet correct
Veld niet correct
Veld niet correct
Veld niet correct
Veld niet correct
Veld niet correct
Klanttevredenheid  9,3 Funda
SEH
Vastgoed ned
Qualis
Toestemming
Instellingen
Links

Wij plaatsen functionele en persoonlijke cookies op onze website. Functionele cookies plaatsen wij altijd, omdat deze noodzakelijk zijn om de website goed te laten werken en het gebruik te kunnen meten. Persoonlijke cookies worden gebruikt voor gepersonaliseerde en niet-gepersonaliseerde advertenties. Lees hier meer over in onze privacyverklaring en ons cookiebeleid.

Door op 'Accepteren' te klikken, ga je akkoord met het plaatsen van zowel functionele als persoonlijke cookies. Bij instellingen kun je een andere voorkeur aangeven. Je kunt je voorkeuren altijd later nog aanpassen op onze cookiepagina.

Wanneer je onze website bezoekt, kunnen we informatie over je bezoek verzamelen door het plaatsen van cookies. Je kunt hier aangeven welk type cookie we mogen plaatsen.

We gebruiken cookies van derden om je interesses te onthouden. Zodat wij en derde partijen je o.a. advertenties laten zien die zijn gebaseerd op jouw voorkeuren.

Lees hier meer over in onze privacyverklaring en ons cookiebeleid.