Klanttevredenheid  9,3 Funda
0 0 0 0 0 0| 0

President Kennedystraat 29

MARGRATEN

Aan de rustige President Kennedystraat 29 in het charmante Margraten ligt deze aantrekkelijke hoekwoning met volop potentie. De woning dient volledig gemoderniseerd te worden, wat jou de unieke kans biedt om het geheel naar eigen smaak en woonwensen in te richten.

De woning is...

Naar omschrijvingen

Prijs

€250.000,- k.k.

Status

Verkocht

Type

Hoekwoning

Woonoppervlakte

101 m²

Inhoud

596 m3

Bouwjaar

1959

  Download brochure
Meer weten? Uw makelaar voor dit pand is ...
Ray van der Venne
Neem contact op
Verkocht

Dit object is 1.804 keer bekeken.

Vraag bezichtiging aan

Omschrijving

Aan de rustige President Kennedystraat 29 in het charmante Margraten ligt deze aantrekkelijke hoekwoning met volop potentie. De woning dient volledig gemoderniseerd te worden, wat jou de unieke kans biedt om het geheel naar eigen smaak en woonwensen in te richten.

De woning is gelegen op een royaal hoekperceel van maar liefst 286 m² en beschikt over een woonoppervlakte van circa 101 m². Dankzij de hoekligging geniet je van extra privacy en een prettige lichtinval. De patiotuin vormt een fijne plek om in alle rust te ontspannen, terwijl de gesloten serre een mooie verlenging van de leefruimte biedt – ideaal om het hele jaar door van het buitengevoel te genieten.

LET OP: PROJECTNOTARIS Notariskantoor Unie te Almere.

Verdere bijzonderheden:
- Bouwjaar 1959 (conform BAG), perceeloppervlakte 286 m²;
- Woonoppervlakte ca. 101 m² (overig inpandige ruimte 65 m²);
- Volledig te moderniseren halfvrijstaande hoekwoning;
- Dubbele garage met kantelpoorten;
- Voorzien van aluminium kozijnen met dubbele beglazing;
- Energielabel E;
- Op loopafstand van alle dagelijkse voorzieningen.
- Voldoende openbare parkeergelegenheid;
- Aanvaarding in overleg.

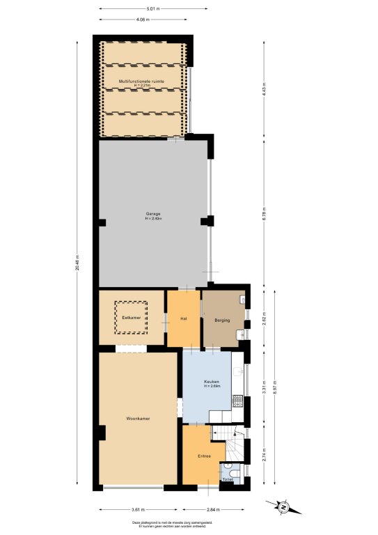
Indeling
Begane grond:
Bij binnenkomst via de entree/hal heb je toegang tot de meterkast, het toilet en de trapopgang naar de eerste verdieping. Vanuit de hal stap je de woonkamer binnen, die door de grote raampartijen een aangename lichtinval heeft. De woonkamer biedt voldoende ruimte voor een gezellige zit- en eethoek en staat in verbinding met de serre aan de achterzijde.
De gesloten keuken bevindt zich eveneens op de begane grond en biedt diverse mogelijkheden voor het realiseren van een moderne keukenopstelling. Tevens is er nog een bijkeuken met standplaats van de CV-installatie.

Eerste verdieping:
Op de eerste verdieping bevinden zich drie slaapkamers van goed formaat, elk met voldoende daglicht. De ruime badkamer is centraal gelegen en biedt mogelijkheden voor het creëren van een comfortabele en eigentijdse indeling.

Zolder:
Middels een vlizotrap is de royale bergzolder bereikbaar.

Garage:
De woning beschikt daarnaast over een dubbele garage, met 2 kantelpoorten, uitstekend geschikt voor het uitoefenen van hobby’s of extra bergruimte.

Kortom: een woning met karakter, ruimte en mogelijkheden, gelegen op een fijne locatie. Ben jij klaar om hier jouw droomhuis van te maken?

Bent U benieuwd naar welke renovatie mogelijkheden door verkoper bij deze woning worden aangeboden? Neem dan contact met ons op!

De waarborgsom/bankgarantie is 10% van de koopsom. De koper dient deze, indien de verkoper en koper dit overeenkomen, binnen 2 weken nadat het financieringsvoorbehoud is verlopen bij de desbetreffende notaris te deponeren.

Ter bescherming van de belangen van zowel koper als ook verkoper wordt uitdrukkelijk gesteld dat een koopovereenkomst met betrekking tot deze onroerende zaak eerst dan tot stand komt nadat koper en verkoper de koopovereenkomst hebben getekend (schriftelijkheidsvereiste).
Indien c.v.ketel en/of warmwatervoorziening een huurtoestel is, dient koper de huurovereenkomst over te nemen.

Alle door ons kantoor verstrekte informatie omtrent onroerende zaken, moet beschouwd worden als een uitnodiging om in onderhandeling te treden, en is geheel vrijblijvend! Alle vermelde maten en afmetingen zijn slechts bij benadering. Aan deze beperkte info kunnen geen rechten worden ontleend. Indien in enige documentatie of op enige website informatie staat die niet overeen komt met de werkelijkheid, dan geldt de feitelijke situatie waarin de woning zich bevindt, zoals koper deze tijdens de bezichtiging heeft kunnen waarnemen, en wordt de woning in deze feitelijke situatie/staat verkocht. Een (eventueel) bijgevoegde plattegrond dient uitsluitend als globale indicatie/visualisatie. Hieraan kunnen uitdrukkelijk geen rechten worden ontleend.

De makelaar Ray van der Venne nodigt u uit voor een bezichtiging.

Lees volledig +
Contact
Kantoor

Mauritslaan 4a
6161 HV Geleen

  085 - 020 7777
  info@lassoo.nl

Specificates
Afmetingen
  • Woonopp. 101 m²
  • Perceelopp. 286 m²
  • Inhoud 596 m³
Algemeen
  • Beschikbaarheid In overleg
Bouw
  • Soort Woningen
  • Type Hoekwoning
  • Bouwjaar 1959
Energie
  • Energielabel G
  • CV-ketel eigendom Nee
  • CV-ketel warmwater Nee
Indeling
  • Slaapkamers 3
  • Aparte douche Nee
  • Garage Ja
  • Kelder Nee
  • Tuin Nee
  • Balkon Nee
  • Dakterras Nee
Kadastrale gegevens
  • Sectie A
  • Sectie perceel 4646
Voorziening
  • Parkeerplaats Ja
  • Lift Nee
  • Airco Nee
  • Openhaard Nee
  • Zwembad Nee
Lees volledig +
Klik hier om de kaart te bekijken

Video's

Plattegrond

Documenten

Vraag bezichtiging aan

Veld niet correct
Veld niet correct
Veld niet correct
Veld niet correct

Brochure aanvragen

Veld niet correct
Veld niet correct
Veld niet correct
Veld niet correct
Veld niet correct
Veld niet correct
Veld niet correct
Klanttevredenheid  9,3 Funda
SEH
Vastgoed ned
Qualis
Toestemming
Instellingen
Links

Wij plaatsen functionele en persoonlijke cookies op onze website. Functionele cookies plaatsen wij altijd, omdat deze noodzakelijk zijn om de website goed te laten werken en het gebruik te kunnen meten. Persoonlijke cookies worden gebruikt voor gepersonaliseerde en niet-gepersonaliseerde advertenties. Lees hier meer over in onze privacyverklaring en ons cookiebeleid.

Door op 'Accepteren' te klikken, ga je akkoord met het plaatsen van zowel functionele als persoonlijke cookies. Bij instellingen kun je een andere voorkeur aangeven. Je kunt je voorkeuren altijd later nog aanpassen op onze cookiepagina.

Wanneer je onze website bezoekt, kunnen we informatie over je bezoek verzamelen door het plaatsen van cookies. Je kunt hier aangeven welk type cookie we mogen plaatsen.

We gebruiken cookies van derden om je interesses te onthouden. Zodat wij en derde partijen je o.a. advertenties laten zien die zijn gebaseerd op jouw voorkeuren.

Lees hier meer over in onze privacyverklaring en ons cookiebeleid.