Klanttevredenheid  9,3 Funda
0 0 0 0 0 0| 0

Leesjongenstraat 22

HOENSBROEK

Gelegen in de rustige en kindvriendelijke wijk Wijk 10 Maria Gewanden – Terschuren in Hoensbroek, vindt u deze luxe, ruime woning aan de Leesjongenstraat 22. Met een woonoppervlakte van 136 m² biedt dit huis volop leefruimte voor het hele gezin. Het woonhuis, gebouwd in 1985 en voorzien van...

Naar omschrijvingen

Prijs

€389.000,- k.k.

Status

Verkocht ovb

Type

Half-vrijstaand

Woonoppervlakte

136 m²

Inhoud

523 m3

Bouwjaar

1985

  Download brochure
Meer weten? Uw makelaar voor dit pand is ...
Roy Ubachs
Neem contact op
Verkocht ovb

Dit object is 3.078 keer bekeken.

Vraag bezichtiging aan

Omschrijving

Gelegen in de rustige en kindvriendelijke wijk Wijk 10 Maria Gewanden – Terschuren in Hoensbroek, vindt u deze luxe, ruime woning aan de Leesjongenstraat 22. Met een woonoppervlakte van 136 m² biedt dit huis volop leefruimte voor het hele gezin. Het woonhuis, gebouwd in 1985 en voorzien van energielabel C, beschikt over 4 slaapkamers, moderne gemakken zoals zwembad, aanbouw, vloerverwarming, een ruime oprit met garage en 13 zonnepanelen. Bovendien bent u binnen enkele minuten bij het centrum van Hoensbroek, diverse supermarkten en wandelgebieden.
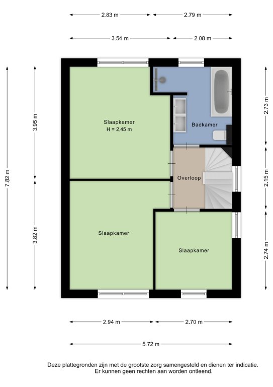
De maten van alle ruimtes vindt u terug in de plattegronden!

Leuk om te weten:
- Bouwjaar 1985 (conform BAG), eigen perceel: 264 m² (conform kadaster);
- Woonoppervlakte ca. 136m² (meetrapport aanwezig);
- Energielabel C;
- Zwembad!;
- Voorzien van airco op de achterzijde slaapkamer;
- Vloerverwarming op de gehele begane grond;
- Gedeeltelijk voorzien van rolluiken;
- 13 zonnepanelen voor energiebesparing;

Begane grond:
Bij binnenkomst betreedt u de ruime hal, die toegang biedt tot de moderne meterkast met handige opslagruimte, het toilet, de trapkast, de garage en de vaste trap naar de eerste verdieping.
De eetkamer staat in open verbinding met de moderne keuken, die van alle gemakken is voorzien: 6-pits gasfornuis, afzuigkap, vaatwasser, combi-ovens, koelkast, diepvries en ingebouwd koffiezetapparaat. De woonkamer, eveneens verbonden met de eetkamer, is licht en ruim en biedt via openslaande deuren toegang tot de tuin. Tevens is hier een hor aanwezig.
De gehele begane grond is betegeld en voorzien van vloerverwarming en sfeervolle spotverlichting. Het toilet is volledig betegeld en voorzien van een hangend closet en fonteintje.

Eerste verdieping:
Op de eerste verdieping vindt u drie ruime slaapkamers, allen met grindvloer en handmatige rolluiken. De slaapkamer aan de achterzijde beschikt over een airco voor aangenaam comfort. De luxe betegelde badkamer is voorzien van een ligbad, toilet, inloopdouche en een dubbele wastafel met meubel. Vanuit de overloop is tevens de vaste trap naar de tweede verdieping bereikbaar.

Tweede verdieping:
De tweede verdieping biedt een extra slaapkamer met wastafel en kastenwand. Vanuit deze slaapkamer is de cv-ruimte bereikbaar, waar de cv-ketel zich bevindt. Ook deze verdieping is voorzien van een grindvloer en kan dienen als extra woonruimte of slaapkamer naar wens.

Tuin:
De voortuin is volledig betegeld en beschikt over een oprit en garage. De achtertuin combineert een groot betegeld (keramische tegel) zitgedeelte met een kleiner groen gedeelte. Via de garage is er eveneens directe toegang tot de tuin.
Tevens beschikt de tuin over een pergula en een zwembad.

De waarborgsom/bankgarantie is 10% van de koopsom. De koper dient deze, indien de verkoper en koper dit overeenkomen, binnen 2 weken nadat het financieringsvoorbehoud is verlopen bij de desbetreffende notaris te deponeren.
Ter bescherming van de belangen van zowel koper als ook verkoper wordt uitdrukkelijk gesteld dat een koopovereenkomst met betrekking tot deze onroerende zaak eerst dan tot stand komt nadat koper en verkoper de koopovereenkomst hebben getekend (schriftelijkheidsvereiste).
Indien c.v.ketel en/of warmwatervoorziening een huurtoestel is, dient koper de huurovereenkomst over te nemen.

Alle door ons kantoor verstrekte informatie omtrent onroerende zaken, moet beschouwd worden als een uitnodiging om in onderhandeling te treden, en is geheel vrijblijvend! Alle vermelde maten en afmetingen zijn slechts bij benadering. Aan deze beperkte info kunnen geen rechten worden ontleend. Indien in enige documentatie of op enige website informatie staat die niet overeen komt met de werkelijkheid, dan geldt de feitelijke situatie waarin de woning zich bevindt, zoals koper deze tijdens de bezichtiging heeft kunnen waarnemen, en wordt de woning in deze feitelijke situatie/staat verkocht. Een (eventueel) bijgevoegde plattegrond dient uitsluitend als globale indicatie/visualisatie. Hieraan kunnen uitdrukkelijk geen rechten worden ontleend.

De makelaar Roy Ubachs nodigt u uit voor een bezichtiging.

Lees volledig +
Contact
Kantoor

Mauritslaan 4a
6161 HV Geleen

  085 - 020 7777
  info@lassoo.nl

Specificates
Afmetingen
  • Woonopp. 136 m²
  • Perceelopp. 264 m²
  • Inhoud 523 m³
Algemeen
  • Beschikbaarheid In overleg
Bouw
  • Soort Woningen
  • Type Half-vrijstaand
  • Bouwjaar 1985
Energie
  • Energielabel C
  • CV-ketel Combi
  • CV-ketel eigendom Ja
  • CV-ketel brandstof Gas
  • CV-ketel warmwater Ja
  • Aanwezige isolatie Dakisolatie, vloerisolatie
Indeling
  • Slaapkamers 4
  • Aparte douche Nee
  • Garage Ja
  • Kelder Nee
  • Tuin Nee
  • Balkon Nee
  • Dakterras Nee
Kadastrale gegevens
  • Sectie A
  • Sectie perceel 5751
Voorziening
  • Parkeerplaats Ja
  • Lift Nee
  • Airco Ja
  • Openhaard Nee
  • Zwembad Ja
  • Zonnepanelen Ja
Lees volledig +
Klik hier om de kaart te bekijken

Video's

Plattegrond

Documenten

Vraag bezichtiging aan

Veld niet correct
Veld niet correct
Veld niet correct
Veld niet correct

Brochure aanvragen

Veld niet correct
Veld niet correct
Veld niet correct
Veld niet correct
Veld niet correct
Veld niet correct
Veld niet correct
Klanttevredenheid  9,3 Funda
SEH
Vastgoed ned
Qualis
Toestemming
Instellingen
Links

Wij plaatsen functionele en persoonlijke cookies op onze website. Functionele cookies plaatsen wij altijd, omdat deze noodzakelijk zijn om de website goed te laten werken en het gebruik te kunnen meten. Persoonlijke cookies worden gebruikt voor gepersonaliseerde en niet-gepersonaliseerde advertenties. Lees hier meer over in onze privacyverklaring en ons cookiebeleid.

Door op 'Accepteren' te klikken, ga je akkoord met het plaatsen van zowel functionele als persoonlijke cookies. Bij instellingen kun je een andere voorkeur aangeven. Je kunt je voorkeuren altijd later nog aanpassen op onze cookiepagina.

Wanneer je onze website bezoekt, kunnen we informatie over je bezoek verzamelen door het plaatsen van cookies. Je kunt hier aangeven welk type cookie we mogen plaatsen.

We gebruiken cookies van derden om je interesses te onthouden. Zodat wij en derde partijen je o.a. advertenties laten zien die zijn gebaseerd op jouw voorkeuren.

Lees hier meer over in onze privacyverklaring en ons cookiebeleid.