Klanttevredenheid  9,3 Funda
0 0 0 0 0 0| 0

Leeuwerikstraat 13

GELEEN

Deze sfeervolle, halfvrijstaande jaren 30 woning met tuin en garage is gelegen op een goede locatie nabij het stadscentrum van Geleen. Ook de autosnelwegen A2 richting Maastricht/Luik en Eindhoven en de A76 richting Heerlen/Aken zijn binnen enkele autominuten te bereiken.

...

Naar omschrijvingen

Prijs

€225.000,- k.k.

Status

Verkocht ovb

Type

Half-vrijstaand

Woonoppervlakte

81 m²

Inhoud

358 m3

Bouwjaar

1935

  Download brochure
Meer weten? Uw makelaar voor dit pand is ...
Ralf Last
Neem contact op
Verkocht ovb

Dit object is 609 keer bekeken.

Vraag bezichtiging aan

Omschrijving

Deze sfeervolle, halfvrijstaande jaren 30 woning met tuin en garage is gelegen op een goede locatie nabij het stadscentrum van Geleen. Ook de autosnelwegen A2 richting Maastricht/Luik en Eindhoven en de A76 richting Heerlen/Aken zijn binnen enkele autominuten te bereiken.

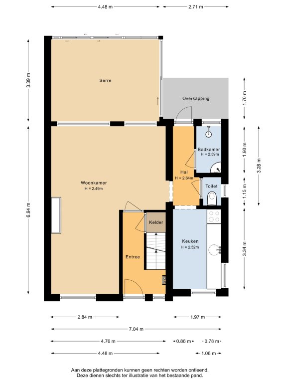
INDELING:

Souterrain:
Provisiekelder, ideaal als opslagruimte.

Begane grond:
Hal/entree met tegelvloer, meterkast met moderne groepenkast en trap naar verdieping. L-vormige woonkamer met laminaatvloer en een sfeervolle schouw die zorgt voor een uitnodigende en huiselijke ambiance. Hal met toegang tot de gesloten keuken met eenvoudig keukenblok voorzien van gaskooktoestel, spoelbak en vaatwasser. Geheel betegelde badkamer met inloopdouche en vaste wastafel in meubel. Separate toiletruimte met closet. Via deze hal krijgt u eveneens toegang tot de omsloten tuin met serre, gazon en terras. Vrijstaande garage, bereikbaar via de naastgelegen oprit met rolpoort naar de tuin.

Eerste verdieping:
Overloop met toegang tot drie slaapkamers, respectievelijk:
Slaapkamer 1: ca. 4.47x 2.41m
Slaapkamer 2: ca. 4.76 x 2.38m
Slaapkamer 3: ca. 3.48x2.25m met toegang tot riante bergruimte, alwaar standplaats c.v.-installatie HR (huur).

Tweede verdieping:
Middels vlizotrap te bereiken riante bergzolder.

BIJZONDERHEDEN:
- Centrale, leuke ligging
- Nieuwe meterkast
- Deels houten, deels kunststof kozijnen met dubbel glas
- Vrijwel geheel voorzien van rolluiken.
- Aanvaarding op korte termijn mogelijk

De waarborgsom/bankgarantie is 10% van de koopsom. De koper dient deze, indien de verkoper en koper dit overeenkomen, binnen 2 weken nadat het financieringsvoorbehoud is verlopen bij de desbetreffende notaris te deponeren.
Ter bescherming van de belangen van zowel koper als ook verkoper wordt uitdrukkelijk gesteld dat een koopovereenkomst met betrekking tot deze onroerende zaak eerst dan tot stand komt nadat koper en verkoper de koopovereenkomst hebben getekend (schriftelijkheidsvereiste).

Alle door ons kantoor verstrekte informatie omtrent onroerende zaken, moet beschouwd worden als een uitnodiging om in onderhandeling te treden, en is geheel vrijblijvend! Alle vermelde maten en afmetingen zijn slechts bij benadering. Aan deze beperkte info kunnen geen rechten worden ontleend. Indien in enige documentatie of op enige website informatie staat die niet overeen komt met de werkelijkheid, dan geldt de feitelijke situatie waarin de woning zich bevindt, zoals koper deze tijdens de bezichtiging heeft kunnen waarnemen, en wordt de woning in deze feitelijke situatie/staat verkocht. Een (eventueel) bijgevoegde plattegrond dient uitsluitend als globale indicatie/visualisatie. Hieraan kunnen uitdrukkelijk geen rechten worden ontleend.

De makelaar Ralf Last nodigt u uit voor een bezichtiging.

Lees volledig +
Contact
Kantoor

Mauritslaan 4a
6161 HV Geleen

  085 - 020 7777
  info@lassoo.nl

Specificates
Afmetingen
  • Woonopp. 81 m²
  • Perceelopp. 286 m²
  • Inhoud 358 m³
  • Tuin oppervlakte 210 m²
Algemeen
  • Beschikbaarheid In overleg
Bouw
  • Soort Woningen
  • Type Half-vrijstaand
  • Bouwjaar 1935
Energie
  • Energielabel F
  • CV-ketel Combi
  • CV-ketel eigendom Nee
  • CV-ketel brandstof Gas
  • CV-ketel warmwater Ja
  • Aanwezige isolatie Glasisolatie
Indeling
  • Slaapkamers 3
  • Aparte douche Nee
  • Garage Ja
  • Kelder Nee
  • Tuin Ja
  • Tuin ligging Zuidwest
  • Balkon Nee
  • Dakterras Nee
Kadastrale gegevens
  • Sectie F
  • Sectie perceel 3017
Voorziening
  • Parkeerplaats Nee
  • Lift Nee
  • Airco Nee
  • Openhaard Nee
  • Zwembad Nee
Lees volledig +
Klik hier om de kaart te bekijken

Plattegrond

Documenten

Vraag bezichtiging aan

Veld niet correct
Veld niet correct
Veld niet correct
Veld niet correct

Brochure aanvragen

Veld niet correct
Veld niet correct
Veld niet correct
Veld niet correct
Veld niet correct
Veld niet correct
Veld niet correct
Klanttevredenheid  9,3 Funda
SEH
Vastgoed ned
Qualis
Toestemming
Instellingen
Links

Wij plaatsen functionele en persoonlijke cookies op onze website. Functionele cookies plaatsen wij altijd, omdat deze noodzakelijk zijn om de website goed te laten werken en het gebruik te kunnen meten. Persoonlijke cookies worden gebruikt voor gepersonaliseerde en niet-gepersonaliseerde advertenties. Lees hier meer over in onze privacyverklaring en ons cookiebeleid.

Door op 'Accepteren' te klikken, ga je akkoord met het plaatsen van zowel functionele als persoonlijke cookies. Bij instellingen kun je een andere voorkeur aangeven. Je kunt je voorkeuren altijd later nog aanpassen op onze cookiepagina.

Wanneer je onze website bezoekt, kunnen we informatie over je bezoek verzamelen door het plaatsen van cookies. Je kunt hier aangeven welk type cookie we mogen plaatsen.

We gebruiken cookies van derden om je interesses te onthouden. Zodat wij en derde partijen je o.a. advertenties laten zien die zijn gebaseerd op jouw voorkeuren.

Lees hier meer over in onze privacyverklaring en ons cookiebeleid.