Klanttevredenheid  9,3 Funda
0 0 0 0 0 0| 0

Koningsberg 38

URMOND

Instapklare twee-onder-een-kapwoning met nieuwe garage op toplocatie in Berg aan de Maas!

Ben je op zoek naar een moderne, instapklare woning op een rustige locatie vlak bij de Maas? Dan is deze compleet gerenoveerde twee-onder-een-kapwoning precies wat je zoekt!
Gelegen in...

Naar omschrijvingen

Prijs

€295.000,- k.k.

Status

Verkocht

Type

2-onder-1-kap

Woonoppervlakte

80 m²

Inhoud

302 m3

Bouwjaar

1959

  Download brochure
Meer weten? Uw makelaar voor dit pand is ...
Ralf Last
Neem contact op
Verkocht

Dit object is 269 keer bekeken.

Vraag bezichtiging aan

Omschrijving

Instapklare twee-onder-een-kapwoning met nieuwe garage op toplocatie in Berg aan de Maas!

Ben je op zoek naar een moderne, instapklare woning op een rustige locatie vlak bij de Maas? Dan is deze compleet gerenoveerde twee-onder-een-kapwoning precies wat je zoekt!
Gelegen in een rustige straat in het geliefde Berg aan de Maas, op een steenworp van het water en met uitstekende verbindingen naar omliggende dorpen en steden.
Volledig gerenoveerd & direct bewoonbaar
In de afgelopen twee jaar is deze woning vrijwel volledig vernieuwd. Denk aan een moderne keuken (2023), een stijlvolle badkamer (2024), nieuwe vloerafwerking en een gloednieuwe geïsoleerde garage met elektrische sectionaalpoort.

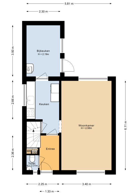
INDELING:

SOUTERRAIN:
Provisiekelder, ideaal als extra bergruimte.

BEGANE GROND:
Overdekte entree en hal met moderne laminaatvloer, luxe toiletruimte met zwevend closet en fonteintje, nieuwe
meterkast. Ruime doorzonwoonkamer met laminaatvloer, airconditioning en veel lichtinval.
Separate moderne keuken (2023) voorzien van 4-pits inductiekooktoestel (Siemens), oven, magnetron, vaatwasser en koelkast.
Praktische bijkeuken met extra douche en standplaats c.v.-installatie Vaillant HR bwjr. 2019 (eigendom) en toegang tot de zonnige, omsloten tuin met nieuwe, geisoleerde garage met elektrische sectionaalpoort en twee tuinbergingen.

EERSTE VERDIEPING:
Overloop met handige bergkast, van waaruit de bergzolder te bereiken is.
Drie slaapkamers met laminaatvloeren, respectievelijk:
Slaapkamer 1: ca. 3.13x2.92m
Slaapkamer 2: ca. 3.41x3.09m
Slaapkamer 3: ca. 2.28x1.98m
Luxe badkamer (2024) met inloopdouche, toilet,
vaste wastafel met meubel en spiegel met verwarming.

BIJZONDERHEDEN:
- Vrijwel geheel gerenoveerd
- Nieuwe garage
- Voorzien van airconditioning
- Grotendeels voorzien van rolluiken
- Aanvaarding op korte termijn mogelijk

De waarborgsom/bankgarantie is 10% van de koopsom. De koper dient deze, indien de verkoper en koper dit overeenkomen, binnen 2 weken nadat het financieringsvoorbehoud is verlopen bij de desbetreffende notaris te deponeren.
Ter bescherming van de belangen van zowel koper als ook verkoper wordt uitdrukkelijk gesteld dat een koopovereenkomst met betrekking tot deze onroerende zaak eerst dan tot stand komt nadat koper en verkoper de koopovereenkomst hebben getekend (schriftelijkheidsvereiste).

Alle door ons kantoor verstrekte informatie omtrent onroerende zaken, moet beschouwd worden als een uitnodiging om in onderhandeling te treden, en is geheel vrijblijvend! Alle vermelde maten en afmetingen zijn slechts bij benadering. Aan deze beperkte info kunnen geen rechten worden ontleend. Indien in enige documentatie of op enige website informatie staat die niet overeen komt met de werkelijkheid, dan geldt de feitelijke situatie waarin de woning zich bevindt, zoals koper deze tijdens de bezichtiging heeft kunnen waarnemen, en wordt de woning in deze feitelijke situatie/staat verkocht. Een (eventueel) bijgevoegde plattegrond dient uitsluitend als globale indicatie/visualisatie. Hieraan kunnen uitdrukkelijk geen rechten worden ontleend.

De makelaar Ralf Last nodigt u uit voor een bezichtiging.

Lees volledig +
Contact
Kantoor

Mauritslaan 4a
6161 HV Geleen

  085 - 020 7777
  info@lassoo.nl

Specificates
Afmetingen
  • Woonopp. 80 m²
  • Perceelopp. 218 m²
  • Inhoud 302 m³
  • Tuin oppervlakte 160 m²
Algemeen
  • Beschikbaarheid In overleg
Bouw
  • Soort Woningen
  • Type 2-onder-1-kap
  • Bouwjaar 1959
Energie
  • Energielabel D
  • CV-ketel Combi
  • CV-ketel eigendom Ja
  • CV-ketel brandstof Gas
  • CV-ketel bouwjaar 2019
  • CV-ketel warmwater Ja
  • Aanwezige isolatie Glasisolatie
Indeling
  • Slaapkamers 3
  • Aparte douche Nee
  • Garage Ja
  • Kelder Ja
  • Tuin Ja
  • Tuin ligging Noordoost
  • Balkon Nee
  • Dakterras Nee
Kadastrale gegevens
  • Sectie A
  • Sectie perceel 5291
Voorziening
  • Parkeerplaats Ja
  • Lift Nee
  • Airco Ja
  • Openhaard Nee
  • Zwembad Nee
Lees volledig +
Klik hier om de kaart te bekijken

Plattegrond

Vraag bezichtiging aan

Veld niet correct
Veld niet correct
Veld niet correct
Veld niet correct

Brochure aanvragen

Veld niet correct
Veld niet correct
Veld niet correct
Veld niet correct
Veld niet correct
Veld niet correct
Veld niet correct
Klanttevredenheid  9,3 Funda
SEH
Vastgoed ned
Qualis