Klanttevredenheid  9,3 Funda
0 0 0 0 0 0| 0

Beukenboomsweg 31

GUTTECOVEN

Deze fraaie twee-onder-een-kapwoning met aanbouw, riante tuin en garage is gelegen in het kerkdorp "Guttecoven".
De woning is goed geisoleerd en voorzien van 8 zonnepanelen.

Leuk om te weten:
- Bouwjaar 1950 (conform BAG), perceeloppervlakte 292m² (conform...

Naar omschrijvingen

Prijs

€275.000,- k.k.

Status

Onder bod

Type

2-onder-1-kap

Woonoppervlakte

88 m²

Inhoud

361 m3

Bouwjaar

1950

  Download brochure
Meer weten? Uw makelaar voor dit pand is ...
Ralf Last
Neem contact op
Onder bod

Dit object is 3.095 keer bekeken.

Vraag bezichtiging aan

Omschrijving

Deze fraaie twee-onder-een-kapwoning met aanbouw, riante tuin en garage is gelegen in het kerkdorp "Guttecoven".
De woning is goed geisoleerd en voorzien van 8 zonnepanelen.

Leuk om te weten:
- Bouwjaar 1950 (conform BAG), perceeloppervlakte 292m² (conform kadaster);
- Woonoppervlakte ca. 88m² (NEN 2580 meetrapport aanwezig), 8m² overige inpandige ruimte;
- Gestraalde gevels;
- Kunststof kozijnen met HR glas;
- Dak en gevels geïsoleerd;
- Energielabel B;
- Aanvaarding in overleg.

INDELING:

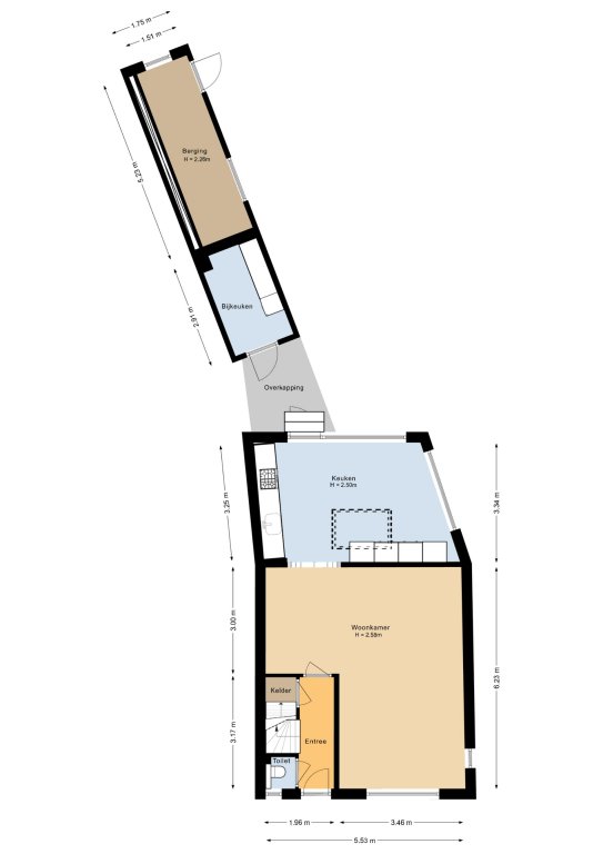
Souterrain:
Betegelde provisiekelder.

Begane grond:
Hal/entree, moderne meterkast, toiletruimte met zwevend closet.
L-vormige woonkamer met vloerverwarming en riante aanbouw met leefkeuken (2022) voorzien van 5-pits inductiekooktoestel, wasemkap, een combimagnetron en een oven, grote koelkast, vriezer en vaatwasser.
Deur naar diepe, omsloten tuin met tuinhuis en diverse tuinbergingen.
Oprit en garage met smeerput en elektrische poort.

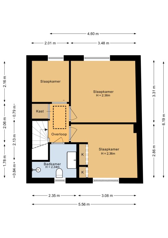
Eerste verdieping:
Overloop met bergkast en drie slaapkamers met laminaatvloeren, respectievelijk:
Slaapkamer 1: ca. 3.48 x 3.31 m voorzien van airconditioning (huur) en rolluik.
Slaapkamer 2: ca. 3.08 x 2.86 m voorzien van airconditioning (eigendom) en rolluik.
Slaapkamer 3: ca. 2.16 x 2.01 m voorzien van rolluik.
Badkamer met douche, vaste wastafel met meubel en tweede toilet.

Tweede verdieping:
Middels vlizotrap te bereiken geïsoleerde bergzolder, alwaar standplaats c.v.-installatie Bosch (ca. € 45,90 per maand, gehuurd t/m augustus 2026).

De waarborgsom/bankgarantie is 10% van de koopsom. De koper dient deze, indien de verkoper en koper dit overeenkomen, binnen 2 weken nadat het financieringsvoorbehoud is verlopen bij de desbetreffende notaris te deponeren.
Ter bescherming van de belangen van zowel koper als ook verkoper wordt uitdrukkelijk gesteld dat een koopovereenkomst met betrekking tot deze onroerende zaak eerst dan tot stand komt nadat koper en verkoper de koopovereenkomst hebben getekend (schriftelijkheidsvereiste).
Indien c.v. ketel en/of warmwatervoorziening een huurtoestel is, dient koper de huurovereenkomst over te nemen.

Alle door ons kantoor verstrekte informatie omtrent onroerende zaken, moet beschouwd worden als een uitnodiging om in onderhandeling te treden, en is geheel vrijblijvend! Alle vermelde maten en afmetingen zijn slechts bij benadering. Aan deze beperkte info kunnen geen rechten worden ontleend. Indien in enige documentatie of op enige website informatie staat die niet overeen komt met de werkelijkheid, dan geldt de feitelijke situatie waarin de woning zich bevindt, zoals koper deze tijdens de bezichtiging heeft kunnen waarnemen, en wordt de woning in deze feitelijke situatie/staat verkocht. Een (eventueel) bijgevoegde plattegrond dient uitsluitend als globale indicatie/visualisatie. Hieraan kunnen uitdrukkelijk geen rechten worden ontleend.

De makelaar Ralf Last nodigt u uit voor een bezichtiging.

Lees volledig +
Contact
Kantoor

Mauritslaan 4a
6161 HV Geleen

  085 - 020 7777
  info@lassoo.nl

Specificates
Afmetingen
  • Woonopp. 88 m²
  • Perceelopp. 292 m²
  • Inhoud 361 m³
Algemeen
  • Beschikbaarheid In overleg
Bouw
  • Soort Woningen
  • Type 2-onder-1-kap
  • Bouwjaar 1950
Energie
  • Energielabel B
  • CV-ketel Combi
  • CV-ketel eigendom Nee
  • CV-ketel brandstof Gas
  • CV-ketel warmwater Ja
  • Aanwezige isolatie Dakisolatie, glasisolatie
Indeling
  • Slaapkamers 3
  • Aparte douche Nee
  • Garage Ja
  • Kelder Ja
  • Tuin Ja
  • Tuin ligging Noordwest
  • Balkon Nee
  • Dakterras Nee
Kadastrale gegevens
  • Sectie C
  • Sectie perceel 4040
Voorziening
  • Parkeerplaats Ja
  • Lift Nee
  • Airco Ja
  • Openhaard Nee
  • Zwembad Nee
  • Zonnepanelen Ja
Lees volledig +
Klik hier om de kaart te bekijken

Plattegrond

Documenten

Vraag bezichtiging aan

Veld niet correct
Veld niet correct
Veld niet correct
Veld niet correct

Brochure aanvragen

Veld niet correct
Veld niet correct
Veld niet correct
Veld niet correct
Veld niet correct
Veld niet correct
Veld niet correct
Klanttevredenheid  9,3 Funda
SEH
Vastgoed ned
Qualis
Toestemming
Instellingen
Links

Wij plaatsen functionele en persoonlijke cookies op onze website. Functionele cookies plaatsen wij altijd, omdat deze noodzakelijk zijn om de website goed te laten werken en het gebruik te kunnen meten. Persoonlijke cookies worden gebruikt voor gepersonaliseerde en niet-gepersonaliseerde advertenties. Lees hier meer over in onze privacyverklaring en ons cookiebeleid.

Door op 'Accepteren' te klikken, ga je akkoord met het plaatsen van zowel functionele als persoonlijke cookies. Bij instellingen kun je een andere voorkeur aangeven. Je kunt je voorkeuren altijd later nog aanpassen op onze cookiepagina.

Wanneer je onze website bezoekt, kunnen we informatie over je bezoek verzamelen door het plaatsen van cookies. Je kunt hier aangeven welk type cookie we mogen plaatsen.

We gebruiken cookies van derden om je interesses te onthouden. Zodat wij en derde partijen je o.a. advertenties laten zien die zijn gebaseerd op jouw voorkeuren.

Lees hier meer over in onze privacyverklaring en ons cookiebeleid.