Klanttevredenheid  9,3 Funda
0 0 0 0 0 0| 0

Seipgensstraat 3

GELEEN

Sfeervolle twee-onder-een-kapwoning met garage, aanbouw en zonnige tuin in geliefde wijk “De Kluis” – Geleen
Op een uitstekende locatie in de populaire en kindvriendelijke wijk “De Kluis” ligt deze goed onderhouden twee-onder-een-kapwoning met aanbouw, garage met kap en verzorgde...

Naar omschrijvingen

Prijs

€375.000,- k.k.

Status

Verkocht

Type

2-onder-1-kap

Woonoppervlakte

111 m²

Inhoud

562 m3

Bouwjaar

1957

  Download brochure
Meer weten? Uw makelaar voor dit pand is ...
Ralf Last
Neem contact op
Verkocht

Dit object is 735 keer bekeken.

Vraag bezichtiging aan

Omschrijving

Sfeervolle twee-onder-een-kapwoning met garage, aanbouw en zonnige tuin in geliefde wijk “De Kluis” – Geleen
Op een uitstekende locatie in de populaire en kindvriendelijke wijk “De Kluis” ligt deze goed onderhouden twee-onder-een-kapwoning met aanbouw, garage met kap en verzorgde tuin.

De woning combineert comfort, duurzaamheid en een gunstige ligging – op loopafstand van het stadspark, het gezellige centrum van Geleen, winkels, scholen én het natuurgebied Daniken. Dankzij de nabijgelegen uitvalswegen A2 (richting Maastricht/Eindhoven) en A76 (richting Heerlen/Aken) bent u bovendien binnen enkele minuten onderweg.
De woning is recent voorzien van een nieuw dak met 14 zonnepanelen en beschikt over airconditioning, wat bijdraagt aan een prettig woonklimaat en lage energielasten.

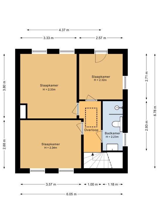
Indeling

Souterrain:
Praktische provisiekelder met veel bergruimte.

Begane grond:
Via de ruime hal met tegelvloer, moderne meterkast en trapopgang bereikt u de royale woonkamer met parketvloer, airconditioning en openslaande tuindeuren naar de sfeervolle, omsloten tuin.
Hier vindt u twee terrassen – waarvan één overdekt – ideaal om van de zon of juist van de schaduw te genieten.
De semi-open keuken is modern ingericht en voorzien van een 4-pits inductiekookplaat, afzuigkap, koelkast en combi-oven.
Via de tussenhal is het toilet met fonteintje bereikbaar, evenals de aanpandige garage met elektrische sectionaalpoort, geïsoleerde bergzolder en opstelplaats van de CV-installatie (Intergas HR, bouwjaar 2023, eigendom).
Voor de woning ligt een ruime oprit met plaats voor twee auto’s.

Eerste verdieping:
Overloop met toegang tot drie verzorgde slaapkamers, alle voorzien van laminaatvloeren.
De moderne badkamer beschikt over een inloopdouche, wastafelmeubel en tweede toilet.

Tweede verdieping:
Via een vlizotrap bereikt u de ruime, geïsoleerde bergzolder – ideaal voor extra opslag.

Bijzonderheden:
- 10 zonnepanelen (gunstige energieprestatie, eigendom en geplaats in 2023), 4 zonnepanelen uit 2011.
- Airconditioning (Daikin, 2023).
- Hoofddak recent vervangen (2023).
- Moderne keuken (2023) en badkamer.
- Goed onderhouden, instapklaar.
- Aanvaarding op korte termijn mogelijk.

De waarborgsom/bankgarantie is 10% van de koopsom. De koper dient deze, indien de verkoper en koper dit overeenkomen, binnen 2 weken nadat het financieringsvoorbehoud is verlopen bij de desbetreffende notaris te deponeren.
Ter bescherming van de belangen van zowel koper als ook verkoper wordt uitdrukkelijk gesteld dat een koopovereenkomst met betrekking tot deze onroerende zaak eerst dan tot stand komt nadat koper en verkoper de koopovereenkomst hebben getekend (schriftelijkheidsvereiste).
Indien c.v.ketel en/of warmwatervoorziening een huurtoestel is, dient koper de huurovereenkomst over te nemen.

Alle door ons kantoor verstrekte informatie omtrent onroerende zaken, moet beschouwd worden als een uitnodiging om in onderhandeling te treden, en is geheel vrijblijvend! Alle vermelde maten en afmetingen zijn slechts bij benadering. Aan deze beperkte info kunnen geen rechten worden ontleend. Indien in enige documentatie of op enige website informatie staat die niet overeen komt met de werkelijkheid, dan geldt de feitelijke situatie waarin de woning zich bevindt, zoals koper deze tijdens de bezichtiging heeft kunnen waarnemen, en wordt de woning in deze feitelijke situatie/staat verkocht. Een (eventueel) bijgevoegde plattegrond dient uitsluitend als globale indicatie/visualisatie. Hieraan kunnen uitdrukkelijk geen rechten worden ontleend.

De makelaar Ralf Last nodigt u uit voor een bezichtiging.

Lees volledig +
Contact
Kantoor

Mauritslaan 4a
6161 HV Geleen

  085 - 020 7777
  info@lassoo.nl

Specificates
Afmetingen
  • Woonopp. 111 m²
  • Perceelopp. 260 m²
  • Inhoud 562 m³
  • Tuin oppervlakte 180 m²
Algemeen
  • Beschikbaarheid In overleg
Bouw
  • Soort Woningen
  • Type 2-onder-1-kap
  • Bouwjaar 1957
Energie
  • Energielabel A
  • CV-ketel Combi
  • CV-ketel eigendom Ja
  • CV-ketel brandstof Gas
  • CV-ketel bouwjaar 2023
  • CV-ketel warmwater Ja
  • Aanwezige isolatie Dakisolatie, glasisolatie
Indeling
  • Slaapkamers 3
  • Aparte douche Nee
  • Garage Ja
  • Kelder Ja
  • Tuin Ja
  • Tuin ligging Oost
  • Balkon Nee
  • Dakterras Nee
Kadastrale gegevens
  • Sectie F
  • Sectie perceel 1054
Voorziening
  • Parkeerplaats Ja
  • Lift Nee
  • Airco Ja
  • Openhaard Nee
  • Zwembad Nee
  • Zonnepanelen Ja
Lees volledig +
Klik hier om de kaart te bekijken

Plattegrond

Documenten

Vraag bezichtiging aan

Veld niet correct
Veld niet correct
Veld niet correct
Veld niet correct

Brochure aanvragen

Veld niet correct
Veld niet correct
Veld niet correct
Veld niet correct
Veld niet correct
Veld niet correct
Veld niet correct
Klanttevredenheid  9,3 Funda
SEH
Vastgoed ned
Qualis
Toestemming
Instellingen
Links

Wij plaatsen functionele en persoonlijke cookies op onze website. Functionele cookies plaatsen wij altijd, omdat deze noodzakelijk zijn om de website goed te laten werken en het gebruik te kunnen meten. Persoonlijke cookies worden gebruikt voor gepersonaliseerde en niet-gepersonaliseerde advertenties. Lees hier meer over in onze privacyverklaring en ons cookiebeleid.

Door op 'Accepteren' te klikken, ga je akkoord met het plaatsen van zowel functionele als persoonlijke cookies. Bij instellingen kun je een andere voorkeur aangeven. Je kunt je voorkeuren altijd later nog aanpassen op onze cookiepagina.

Wanneer je onze website bezoekt, kunnen we informatie over je bezoek verzamelen door het plaatsen van cookies. Je kunt hier aangeven welk type cookie we mogen plaatsen.

We gebruiken cookies van derden om je interesses te onthouden. Zodat wij en derde partijen je o.a. advertenties laten zien die zijn gebaseerd op jouw voorkeuren.

Lees hier meer over in onze privacyverklaring en ons cookiebeleid.